Sold on 5/19/2023 for $318,515


111 Coosa Lane, Anderson, SC 29621
$318,515
$318,515
Sale Summary
Sold at asking price • Extended time on market
Bedrooms
3
Bathrooms
2
This property sold 2 years ago and is no longer available for purchase.
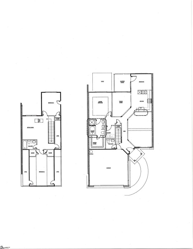
View active listings in Willow Haven at Cobbs Glen →$15,000 buyer savings on this spacious owner's-suite-on-main townhome with 2-car garage, gated community entrance, and exterior maintenance provided! The vaulted great room with cozy fireplace and the columned dining room beyond create a great first impression as you enter this lovely townhome. The stylish kitchen is a model of efficiency with gray soft-close cabinets, Frost White quartz countertops, beautiful tile backsplash and stainless appliances.
Time on Site
3 years ago
Property Type
Residential
Year Built
2022
Lot Size
N/A
Price/Sq.Ft.
N/A
HOA Fees
Request Info from Buyer's AgentLoading map...
The information is being provided by Greater Greenville MLS. Information deemed reliable but not guaranteed. Information is provided for consumers' personal, non-commercial use, and may not be used for any purpose other than the identification of potential properties for purchase. Copyright 2025 Greater Greenville MLS. All Rights Reserved.