Sold on 5/5/2023 for $223,879


449 Bee Cove Way, Pendleton, SC 29670
$222,499
$222,499
Sale Summary
Sold above asking price • Extended time on market
Bedrooms
3
Bathrooms
2
This property sold 2 years ago and is no longer available for purchase.
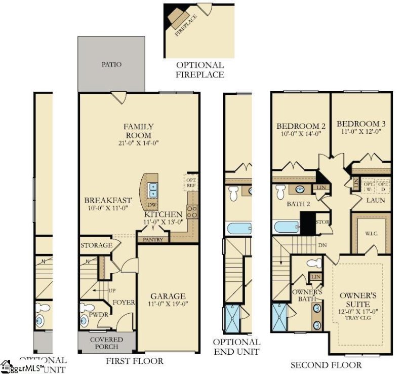
View active listings in The Falls at Meehan →Comfort and elegance meet in this end-unit, two-story townhome design. The first floor offers both a covered front porch and back patio for optimized indoor-outdoor living. An open design seamlessly connects the family room, kitchen with quartz countertops and breakfast nook.
Time on Site
3 years ago
Property Type
Residential
Year Built
N/A
Lot Size
2,613 SqFt
Price/Sq.Ft.
N/A
HOA Fees
Request Info from Buyer's AgentThe information is being provided by Greater Greenville MLS. Information deemed reliable but not guaranteed. Information is provided for consumers' personal, non-commercial use, and may not be used for any purpose other than the identification of potential properties for purchase. Copyright 2025 Greater Greenville MLS. All Rights Reserved.