Sold on 2/1/2022 for $393,650





222 Deerview Trail, Simpsonville, SC 29680
$393,650
$393,650
Sale Summary
Sold at asking price • Extended time on market
Bedrooms
4
Bathrooms
3
This property sold 3 years ago and is no longer available for purchase.
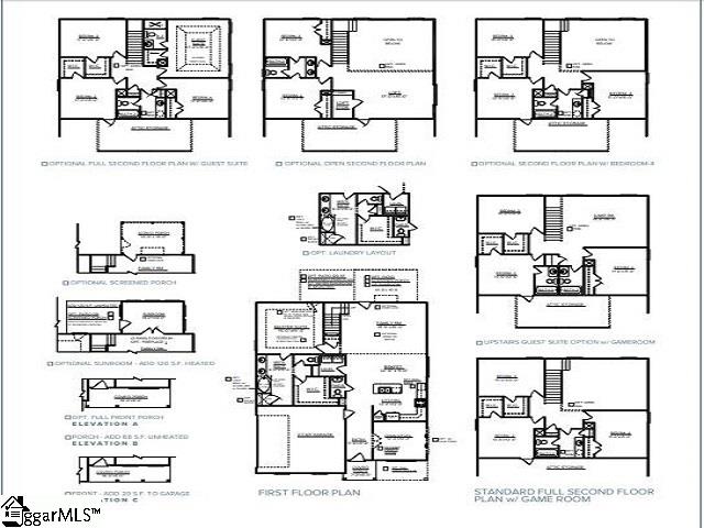
View active listings in River Springs →Life in River Springs offers all the charm of small town living while remaining a short 20 minutes from downtown Greenville and 5 Minutes from downtown Simpsonville. Conveniently located right off West Georgia Road, this idyllic community boasts easy access to a multitude of dining and shopping tucked into the beautiful upstate landscape backing up to the Reedy River. The Cassidy floorplan is one of our popular two story floorplan offering Master on Main and 3 bedrooms and a game room up.
Time on Site
4 years ago
Property Type
Residential
Year Built
2021
Lot Size
N/A
Price/Sq.Ft.
N/A
HOA Fees
Request Info from Buyer's AgentLoading map...
The information is being provided by Greater Greenville MLS. Information deemed reliable but not guaranteed. Information is provided for consumers' personal, non-commercial use, and may not be used for any purpose other than the identification of potential properties for purchase. Copyright 2025 Greater Greenville MLS. All Rights Reserved.