Sold on 8/19/2021 for $285,000





More Photos
7656 Eastbourne Road, Charlotte, NC 28227
$262,200
$262,200
Sale Summary
Sold above asking price • Sold quickly
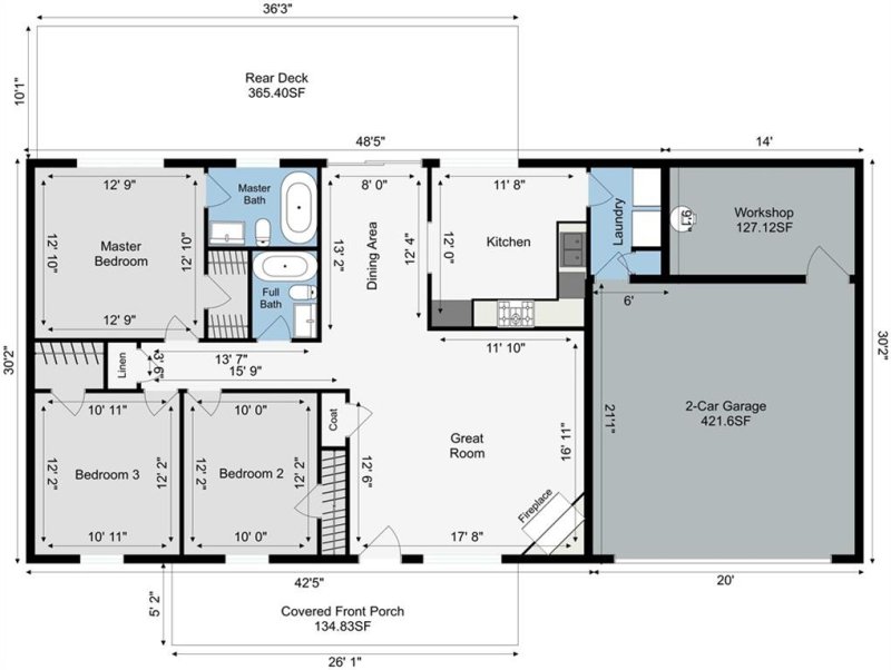
Bedrooms
3
Bathrooms
2
Living Area
1,334 SqFt
This property sold 4 years ago and is no longer available for purchase.
View active listings in Walden Park →Your Perfect 1 Story Home Awaits! Enjoy the outdoors from the Covered Rocking Chair Front Porch, OR Spend Serine Evenings on the 36'x10' Back Deck overlocking your large Semi-Wooded backyard Enclosed by a New 6' Privacy Fence! Relax in the Large & Open Great-Room featuring a Stone Surround Wood-Burning Fireplace.
Time on Site
4 years ago
Property Type
Residential
Year Built
1984
Lot Size
17,424 SqFt
Price/Sq.Ft.
$197
HOA Fees
Request Info from Buyer's AgentIDX information is provided exclusively for consumers' personal, non-commercial use only; it may not be used for any purpose other than to identify prospective properties consumers may be interested in purchasing. Data is deemed reliable but is not guaranteed accurate by the MLS GRID. Use of this site may be subject to an end user license agreement. Based on information submitted to the MLS GRID as of Fri, Aug 20, 2021. All data is obtained from various sources and may not have been verified by broker or MLS GRID. Supplied Open House Information is subject to change without notice. All information should be independently reviewed and verified for accuracy. Properties may or may not be listed by the office/agent presenting the information. Some IDX listings have been excluded from this website. Any use by you of search facilities of data on the site, other than by a consumer looking to purchase real estate, is prohibited. DMCA Notice: Palmetto Park Realty respects the intellectual property rights of others. If you believe that your work has been copied in a way that constitutes copyright infringement, please provide our designated agent with written notice containing the following information: (1) identification of the copyrighted work claimed to have been infringed; (2) identification of the material that is claimed to be infringing; (3) your contact information; (4) a statement that you have a good faith belief that use of the material is not authorized; and (5) a statement that the information in the notification is accurate and you are authorized to act on behalf of the copyright owner. Please send DMCA notices to: [email protected]