Sold on 4/7/2025 for $264,680




86 Fernhill Lane, Fountain Inn, SC 29644
$274,999
$274,999
Sale Summary
Sold below asking price • Sold quickly
Bedrooms
3
Bathrooms
2
Living Area
1,983 SqFt
This property sold 8 months ago and is no longer available for purchase.
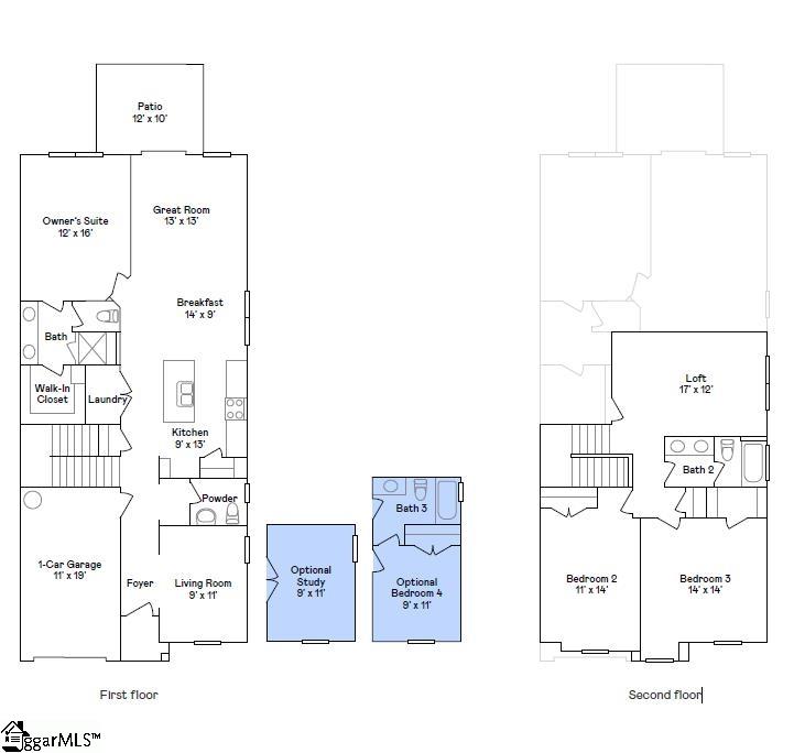
View active listings in Stoneledge Cottages →Welcome home to the beautiful Berkley floorplan. This home is expected to be complete in MARCH 2025. The home is an open concept floor plan with the Primary bedroom + full bath, as well as an office + half bath on the first floor!
Time on Site
10 months ago
Property Type
Residential
Year Built
2025
Lot Size
2,178 SqFt
Price/Sq.Ft.
$139
HOA Fees
Request Info from Buyer's AgentLoading map...
The information is being provided by Greater Greenville MLS. Information deemed reliable but not guaranteed. Information is provided for consumers' personal, non-commercial use, and may not be used for any purpose other than the identification of potential properties for purchase. Copyright 2025 Greater Greenville MLS. All Rights Reserved.