This Property Has Been Sold

Sold on 6/30/2025 for $235,000

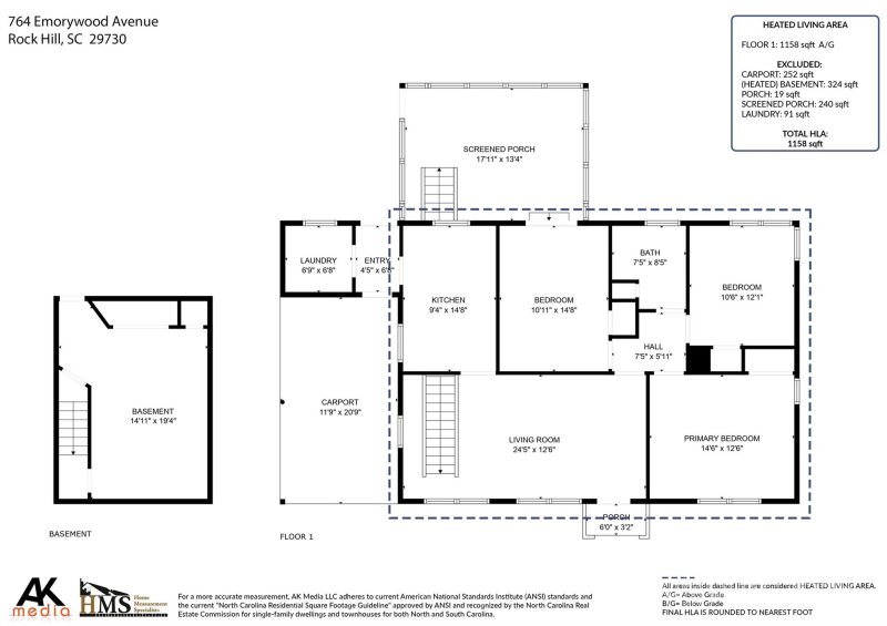
Property image 1 at 764 Emorywood Lane, Rock Hill, SC 29730

764 Emorywood Lane in Sedgefield, Rock Hill, SC

SOLD

764 Emorywood Lane, Rock Hill, SC 29730

$234,900

Sold: $235,000

Sale Summary

100% of list price in 0 days

Sold at asking price • 0

Property Highlights

Bedrooms

3

Bathrooms

1

Living Area

1,158 SqFt

Property Details

This Property Has Been Sold

This property sold 3 months ago and is no longer available for purchase.

View active listings in Sedgefield

This charming 3-bedroom home is brimming with potential and is perfect for anyone looking to take on a new project. While it does need some tender loving care, it offers a wonderful opportunity to customize and create your dream home.

Time on Site

3 months ago

Property Type

Residential

Year Built

1960

Lot Size

N/A

Price/Sq.Ft.

$203

Property Details
Bedrooms:
3
Bathrooms:
1
Living Area:
1,158 SqFt
Property Sub-Type:
SingleFamilyResidence
Basement:
Yes
School Information
Elementary:
Ebenezer
Middle:
Sullivan
High:
Rock Hill
School assignments may change. Contact the school district to confirm.

Additional Information

Utilities

Sewer
  • Public Sewer
Water Source
  • City

Lot And Land

Lot Size Units
Acres

Agent Contacts

Listing Agent
Listing agent: Kenyatta Hankerson (704-458-4619)
Listing Office
Listing provided courtesy of: Hankerson RE Consultants (704-927-4065)
Request Showing
  • Palmetto Park Realty Team Fort Mill: 803.548.6123
Source Identification
Details provided by CANOPYMLS as Distributed by MLS Grid and may not match the public record. Learn more.

Interior Details

Heating
  • Central
Sq Ft Main
1158
Room Count
6
Sq Ft Lower
0
Sq Ft Third
0
Sq Ft Upper
0
Bedroom Main
3
Full Bath Main
1
Half Bath Main
0
Half Bathrooms
0
Total Bathrooms
1
Laundry Features
  • Utility Room
Main Level Garage Y N
0
Sq Ft Unheated Total
0
Sq Ft Total Property H L A
1158

Exterior Features

Construction Materials
  • Brick Full

Parking And Garage

Carport Spaces
1
Carport Present
true
Parking Features
  • Attached Carport

Financial Information

City Taxes Paid To
Rock Hill

Basement And Foundation

Basement
  • Exterior Entry
Foundation Details
  • Crawl Space

Zoning And Restrictions

Zoning Specification
S F-3

Square Footage And Levels

Levels
  • One
Above Grade Finished Area
1158
Below Grade Finished Area
0

Additional C A R Information

Assumable
No
Auction Y N
0
C C R Subject To
No
Owner Agent Y N
0
Deed Reference
17021-20
Construction Type
Site Built
Attribution Contact
Kenyatta10@live.com
Mls Major Change Type
Closed
Down Payment Resource Y N
1
Attribution Type Listing
List Agent Email
Syndicate Participation
Participant Options
Canopy MLS

IDX information is provided exclusively for consumers' personal, non-commercial use only; it may not be used for any purpose other than to identify prospective properties consumers may be interested in purchasing. Data is deemed reliable but is not guaranteed accurate by the MLS GRID. Use of this site may be subject to an end user license agreement. Based on information submitted to the MLS GRID as of Mon, Jun 30, 2025. All data is obtained from various sources and may not have been verified by broker or MLS GRID. Supplied Open House Information is subject to change without notice. All information should be independently reviewed and verified for accuracy. Properties may or may not be listed by the office/agent presenting the information. Some IDX listings have been excluded from this website. Any use by you of search facilities of data on the site, other than by a consumer looking to purchase real estate, is prohibited. DMCA Notice: Palmetto Park Realty respects the intellectual property rights of others. If you believe that your work has been copied in a way that constitutes copyright infringement, please provide our designated agent with written notice containing the following information: (1) identification of the copyrighted work claimed to have been infringed; (2) identification of the material that is claimed to be infringing; (3) your contact information; (4) a statement that you have a good faith belief that use of the material is not authorized; and (5) a statement that the information in the notification is accurate and you are authorized to act on behalf of the copyright owner. Please send DMCA notices to: hello@palmettopark.com

Listing Information
  • LocationRock Hill
  • MLS #CAR273675170
  • Last UpdatedJune 30, 2025

Get in contact now

(864) 670-2100

Claudia Hinsdale

Claudia Hinsdale

Available 8AM-9PM ET