Sold on 1/13/2023 for $375,000


652 Sand Hill Road, Asheville, NC 28806
$375,000
$375,000
Sale Summary
Sold at asking price • Sold slightly slower than average
Bedrooms
8
Bathrooms
2
This property sold 2 years ago and is no longer available for purchase.
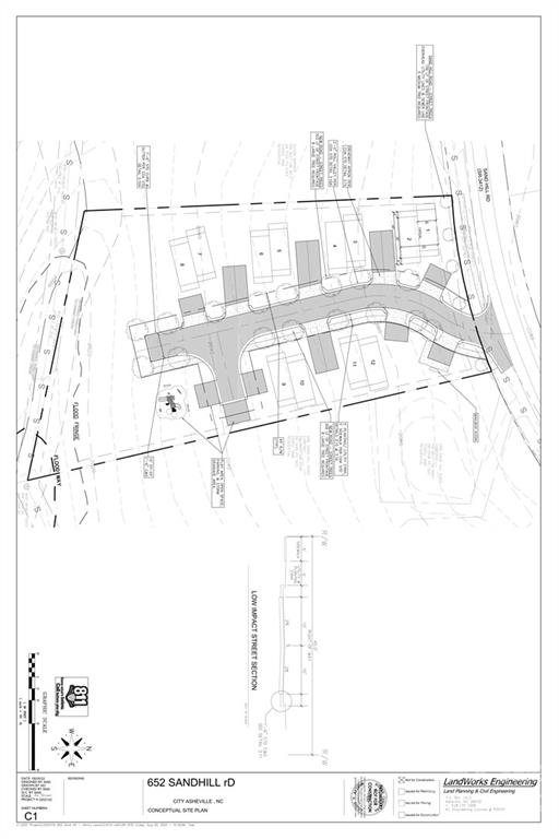
View active listings in Malvern Hills →Investor alert! Five-unit mobile home park (four units to convey with sale; fifth pays lot rent). Continue to run as a mobile home park (in the city limits!) or with RM6 zoning, convert the property to multifamily townhomes (see attached conceptual site plan from engineer. City water, city sewer, and natural gas at the road. Convenient west Asheville location close to downtown, the Blue Ridge Parkway, shopping, and entertainment.
Time on Site
3 years ago
Property Type
ResidentialIncome
Year Built
9999
Lot Size
1.53 Acres
Price/Sq.Ft.
N/A
HOA Fees
Request Info from Buyer's AgentLoading map...
IDX information is provided exclusively for consumers' personal, non-commercial use only; it may not be used for any purpose other than to identify prospective properties consumers may be interested in purchasing. Data is deemed reliable but is not guaranteed accurate by the MLS GRID. Use of this site may be subject to an end user license agreement. Based on information submitted to the MLS GRID as of Sat, Jan 21, 2023. All data is obtained from various sources and may not have been verified by broker or MLS GRID. Supplied Open House Information is subject to change without notice. All information should be independently reviewed and verified for accuracy. Properties may or may not be listed by the office/agent presenting the information. Some IDX listings have been excluded from this website. Any use by you of search facilities of data on the site, other than by a consumer looking to purchase real estate, is prohibited. DMCA Notice: Palmetto Park Realty respects the intellectual property rights of others. If you believe that your work has been copied in a way that constitutes copyright infringement, please provide our designated agent with written notice containing the following information: (1) identification of the copyrighted work claimed to have been infringed; (2) identification of the material that is claimed to be infringing; (3) your contact information; (4) a statement that you have a good faith belief that use of the material is not authorized; and (5) a statement that the information in the notification is accurate and you are authorized to act on behalf of the copyright owner. Please send DMCA notices to: [email protected]