Sold on 1/14/2025 for $265,000



61 Fernhill Lane, Fountain Inn, SC 29644
$294,669
$294,669
Sale Summary
Sold below asking price • Sold quickly
Bedrooms
3
Bathrooms
2
Living Area
1,983 SqFt
This property sold 11 months ago and is no longer available for purchase.
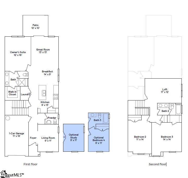
View active listings in Stoneledge Cottages →Welcome home to the beautiful Berkley floorplan. This home is expected to be complete in December. The home is an open concept floor plan with the Primary bedroom on the main level and 2 additional bedrooms upstairs along with a loft upstairs.
Time on Site
1 year ago
Property Type
Residential
Year Built
2024
Lot Size
2,178 SqFt
Price/Sq.Ft.
$149
HOA Fees
Request Info from Buyer's AgentLoading map...
The information is being provided by Greater Greenville MLS. Information deemed reliable but not guaranteed. Information is provided for consumers' personal, non-commercial use, and may not be used for any purpose other than the identification of potential properties for purchase. Copyright 2025 Greater Greenville MLS. All Rights Reserved.