Sold on 10/7/2025 for $335,000





More Photos
508 Waveland Drive, Travelers Rest, SC 29690
$349,999
$349,999
Sale Summary
Sold below asking price • Sold in typical time frame
Bedrooms
3
Bathrooms
2
Living Area
1,931 SqFt
This property sold 1 month ago and is no longer available for purchase.
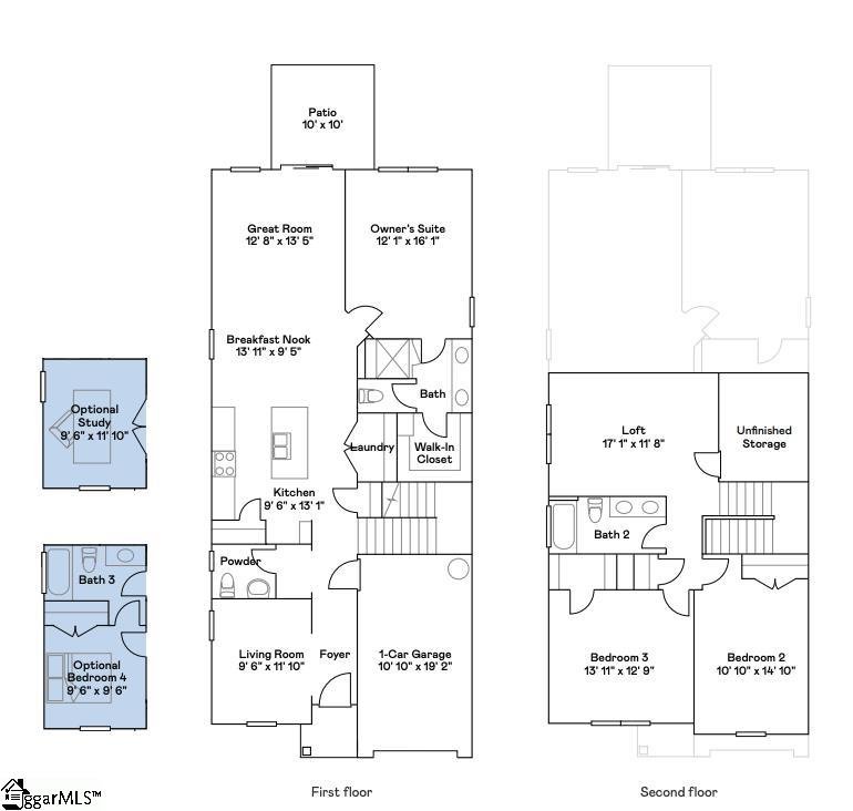
View active listings in Spring Park →The Edgefield floorplan at Spring Park community in Travelers Rest, South Carolina, offers a thoughtfully designed two-story layout that blends comfort, functionality, and modern living. With approximately 1,931 square feet, it includes three bedrooms, two and a half bathrooms, and a one-car garage. A standout feature is the first-floor owner’s suite, tucked privately at the back of the home with a walk-in closet and en-suite bath.
Time on Site
4 months ago
Property Type
Residential
Year Built
2025
Lot Size
N/A
Price/Sq.Ft.
$181
HOA Fees
Request Info from Buyer's AgentThe information is being provided by Greater Greenville MLS. Information deemed reliable but not guaranteed. Information is provided for consumers' personal, non-commercial use, and may not be used for any purpose other than the identification of potential properties for purchase. Copyright 2025 Greater Greenville MLS. All Rights Reserved.