Sold on 6/17/2025 for $252,399





More Photos
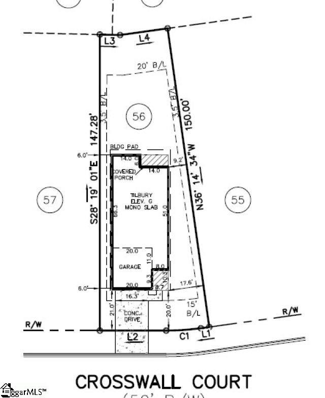
5028 Crosswall Court, Boiling Springs, SC 29316
$252,355
$252,355
Sale Summary
Sold at asking price • Sold in typical time frame
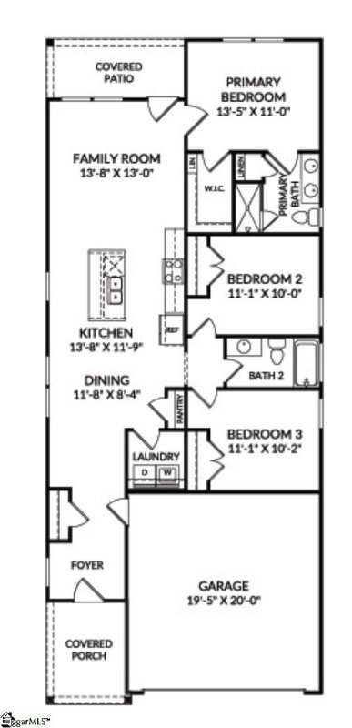
Bedrooms
3
Bathrooms
2
Living Area
1,296 SqFt
This property sold 6 months ago and is no longer available for purchase.
View active listings in Ashwood Meadows →Welcome Home to Ashwood Meadows! Located conveniently to shopping and restaurants and a quick drive to Lake Bowen. This is the first ranch style home to come to our neighborhood- the Tillbury!
Time on Site
9 months ago
Property Type
Residential
Year Built
2025
Lot Size
6,098 SqFt
Price/Sq.Ft.
$195
HOA Fees
Request Info from Buyer's AgentLoading map...
The information is being provided by Greater Greenville MLS. Information deemed reliable but not guaranteed. Information is provided for consumers' personal, non-commercial use, and may not be used for any purpose other than the identification of potential properties for purchase. Copyright 2025 Greater Greenville MLS. All Rights Reserved.