Sold on 12/22/2021 for $262,890





More Photos
424 Grantham Court, Spartanburg, SC 29303
$262,890
$262,890
Sale Summary
Sold at asking price • Extended time on market
Bedrooms
4
Bathrooms
2
This property sold 3 years ago and is no longer available for purchase.
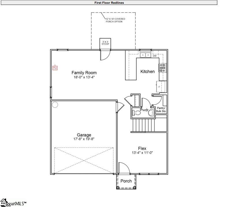
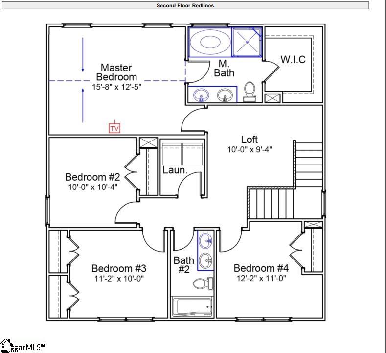
View active listings in Durham Farms →The Guilford A floor plan offers four bedrooms, two and one-half bathrooms, covered patio, and a two-car garage. This home opens onto a flex space, just past it the kitchen leads to a walk-in pantry and the family room. The kitchen features upgraded cabinetry, upgraded luxury vinyl plank flooring, GE stainless steel dishwasher, microwave, and oven, and granite countertops.
Time on Site
4 years ago
Property Type
Residential
Year Built
2021
Lot Size
5,227 SqFt
Price/Sq.Ft.
N/A
HOA Fees
Request Info from Buyer's AgentLoading map...
The information is being provided by Greater Greenville MLS. Information deemed reliable but not guaranteed. Information is provided for consumers' personal, non-commercial use, and may not be used for any purpose other than the identification of potential properties for purchase. Copyright 2025 Greater Greenville MLS. All Rights Reserved.