Sold on 1/29/2024 for $220,000





More Photos
415 Parkdale D, Charleston, SC 29414
$235,000
$235,000
Sale Summary
Sold below asking price • Sold quickly
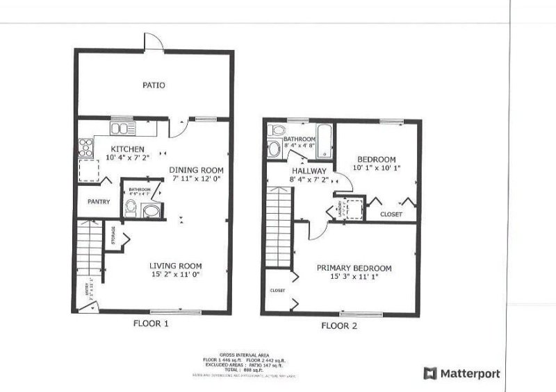
Bedrooms
2
Bathrooms
1
This property sold 1 year ago and is no longer available for purchase.
View active listings in Carolina Cove →Updated condo in West Ashley Close to I-526 , restaurants, shopping and the City of Charleston. Granite countertops, stainless steel appliances, hardwood floors throughout with new HVAC and roof in 2021. Condo has a stacked washer and dryer and refrigerator to convey with successful closing.
Time on Site
1 year ago
Property Type
Residential
Year Built
1973
Lot Size
N/A
Price/Sq.Ft.
N/A
HOA Fees
Request Info from Buyer's Agent