This Property Has Been Sold

Sold on 8/24/2023 for $231,019

Property image 1 at 408 Couchell Place, Travelers Rest, SC 29690

408 Couchell Place in Wethington Place, Travelers Rest, SC

SOLD

408 Couchell Place, Travelers Rest, SC 29690

$229,999

Sold: $231,019

Sale Summary

100% of list price in 81 days

Sold at asking price • Sold in typical time frame

Property Highlights

Bedrooms

3

Bathrooms

2

Property Details

This Property Has Been Sold

This property sold 2 years ago and is no longer available for purchase.

View active listings in Wethington Place

Come take a tour of our lovely Truman plan at our Wethington Place Community!! Wethington Place is a stunning new townhome community just minutes from downtown Greenville & 1 mile from downtown Travelers Rest. Wethington Place is just across the street from Trailblazer Park and Swamp Rabbit Trail!

Time on Site

2 years ago

Property Type

Residential

Year Built

2023

Lot Size

1,742 SqFt

Price/Sq.Ft.

N/A

Property Details
Bedrooms:
3
Bathrooms:
2
Property Sub-Type:
Townhouse
Stories:
2
School Information
Elementary:
Gateway
Middle:
Northwest
High:
Travelers Rest
School assignments may change. Contact the school district to confirm.

Additional Information

Region

0
G
1
V
2
L

Agent Contacts

Request Showing
  • Greenville: (864) 757-4000
  • Simpsonville: (864) 881-2800
Listing Courtesy Of
Jennifer Hendrix of Lennar Carolinas LLC

Community & H O A

H O A
Y
Additional Fees
Cap Contr./Perpetual Fee

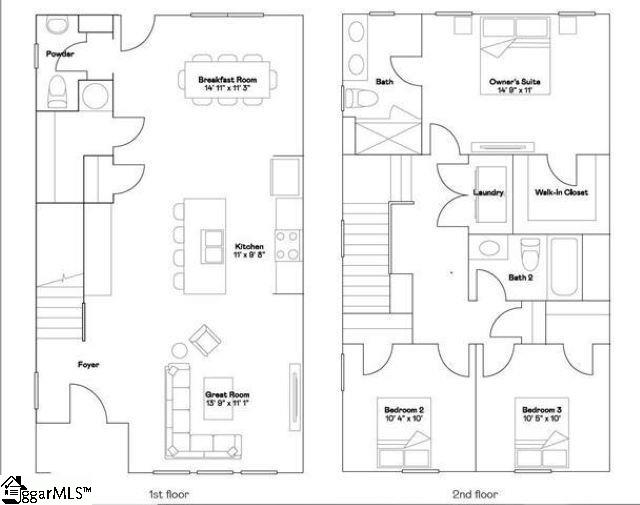
Room Dimensions

Kitchen Size
13x10
Bedroom #2 Size
10x10
Bedroom #3 Size
10x10
Great Room Size
14x14
Breakfast Room Size
17x10
Primary Bedroom Size
15x11

Property Details

County
Greenville
Roof Type
Architectural
Foundation
Slab
Home Style
  • Traditional
  • Craftsman
Tax I D Number
n/a
Lot Description
  • Level
  • Underground Utilities
Lot Size Description
1/2 Acre or Less
Square Footage Range
1400-1599

Exterior Features

Driveway
Paved
Exterior Finish
  • Brick Veneer-Partial
  • Hardboard Siding
Exterior Features
  • Porch-Front
  • Tilt Out Windows
  • Windows-Insulated

Interior Features

Laundry
  • 2nd Floor
  • Dryer – Electric Hookup
  • Washer Connection
Flooring
  • Carpet
  • Laminate Flooring
Appliances
  • Dishwasher
  • Disposal
  • Stand Alone Range-Gas
  • Microwave-Built In
Storage Space
Other/See Remarks
Specialty Rooms
  • Laundry
  • Breakfast Area
Interior Features
  • Ceiling 9ft+
  • Ceiling Smooth
  • Open Floor Plan
  • Smoke Detector
  • Walk In Closet
  • Countertops – Quartz
Number Of Fireplaces
0

Systems & Utilities

Sewer
Public
Water Heater
Electric
Water Source
Public
Cooling System
  • Central Forced
  • Electric
  • Damper Controlled
Garbage Pickup
Public
Heating System
  • Forced Air
  • Natural Gas
  • Damper Controlled

Showing & Documentation

Documents On File
  • Warranty Furnished
  • House Plans
  • Restric.Cov/By-Laws
Showing Instructions
Call Listing Office/Agent
Documents Required With Offer
  • Pre-approve/Proof of Fund
  • Specified Sales Contract
Lead- Based Paint Disclosure Required
No
Residential Property Disclosure Required
No

The information is being provided by Greater Greenville MLS. Information deemed reliable but not guaranteed. Information is provided for consumers' personal, non-commercial use, and may not be used for any purpose other than the identification of potential properties for purchase. Copyright 2025 Greater Greenville MLS. All Rights Reserved.

Listing Information
  • LocationTravelers Rest
  • MLS #GVL1500190
  • Stories2

Get in contact now

(864) 670-2100

Claudia Hinsdale

Claudia Hinsdale

Available 8AM-9PM ET