This Property Has Been Sold

Sold on 1/7/2020 for $181,000

Property image 1 at 39 Cedar Brook Court, Greenville, SC 29611

39 Cedar Brook Court in Lenhardt Village, Greenville, SC

SOLD

39 Cedar Brook Court, Greenville, SC 29611

$179,900

Sold: $181,000+1%

Sale Summary

101% of list price in 339 days

Sold above asking price • Extended time on market

Property Highlights

Bedrooms

3

Bathrooms

2

Property Details

This Property Has Been Sold

This property sold 5 years ago and is no longer available for purchase.

View active listings in Lenhardt Village

***Close on a Friday, Move-In on a Saturday. Construction Completed! High Quality home by local builder with attention to detail.

Time on Site

6 years ago

Property Type

Residential

Year Built

N/A

Lot Size

15,681 SqFt

Price/Sq.Ft.

N/A

Property Details
Bedrooms:
3
Bathrooms:
2
Property Sub-Type:
SingleFamilyResidence
Garage:
Yes
Stories:
2
School Information
Elementary:
Armstrong
Middle:
Berea
High:
Berea
School assignments may change. Contact the school district to confirm.

Additional Information

Region

0
G
1
V
2
L

Agent Contacts

Request Showing
  • Greenville: (864) 757-4000
  • Simpsonville: (864) 881-2800
Listing Courtesy Of
Jim Alef of Access Realty, LLC

Community & H O A

H O A
Y
Additional Fees
None

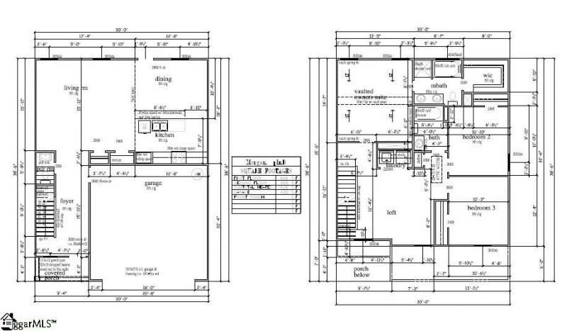
Room Dimensions

Kitchen Size
12X9
Bedroom #2 Size
11X11
Bedroom #3 Size
11X11
Dining Room Size
12X9
Living Room Size
17X16
Primary Bedroom Size
14X12

Property Details

County
Greenville
Roof Type
Architectural
Foundation
Slab
Home Style
Traditional
Tax I D Number
B004.08-01-012.00
Lot Description
  • Level
  • Sloped
Lot Size Description
1/2 Acre or Less
Square Footage Range
1600-1799

Exterior Features

Driveway
Paved
Exterior Finish
Vinyl Siding
Exterior Features
  • Deck
  • Porch-Other
  • Tilt Out Windows
  • Windows-Insulated

Interior Features

Laundry
  • 2nd Floor
  • Closet Style
Flooring
  • Carpet
  • Vinyl
Appliances
  • Cook Top-Smooth
  • Dishwasher
  • Microwave-Built In
Storage Space
Other/See Remarks
Specialty Rooms
  • Laundry
  • Loft
Interior Features
  • Cable Available
  • Ceiling Fan
  • Ceiling Smooth
  • Countertops Granite
  • Smoke Detector
  • Walk In Closet
Number Of Fireplaces
0

Systems & Utilities

Sewer
Public
Water Heater
Electric
Water Source
Public
Cooling System
  • Central Forced
  • Electric
Garbage Pickup
Private
Heating System
  • Electric
  • Forced Air

Showing & Documentation

Documents On File
Warranty Furnished
Showing Instructions
Appointment/Call Center
Documents Required With Offer
  • Copy Earnest Money Check
  • Pre-approve/Proof of Fund
  • Specified Sales Contract
Lead- Based Paint Disclosure Required
No
Residential Property Disclosure Required
No

The information is being provided by Greater Greenville MLS. Information deemed reliable but not guaranteed. Information is provided for consumers' personal, non-commercial use, and may not be used for any purpose other than the identification of potential properties for purchase. Copyright 2025 Greater Greenville MLS. All Rights Reserved.

Listing Information
  • LocationGreenville
  • MLS #GVL1384676
  • Stories2

Get in contact now

(864) 670-2100

Claudia Hinsdale

Claudia Hinsdale

Available 8AM-9PM ET