Sold on 10/31/2024 for $370,000





More Photos
308 Sweetspire Street, Moncks Corner, SC 29461
$380,000
$380,000
Sale Summary
Sold below asking price • Extended time on market
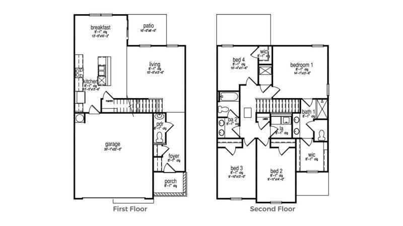
Bedrooms
4
Bathrooms
2
This property sold 1 year ago and is no longer available for purchase.
View active listings in Carolina Groves →Ready Now!Welcome to The Edmon, a residence that captures the essence of modern elegance. Adorned with brownstone-colored siding, this home stands prominently at the front of the Carolina Groves community, offering both charm and convenience.As you enter, you are greeted by a thoughtfully designed drop-off point, followed by a stylish half bathroom. Moving further, the space unfolds into a spacious living room that effortlessly transitions into an open-concept kitchen. The kitchen dazzles with its pristine white cabinets, a vast kitchen island perfect for gatherings, and a dining area that seamlessly integrates with the kitchen.Equipped with cutting-edge Whirlpool stainless steel appliances, including a five-burner gas range and an exterior vented hood, this kitchen is both functional and beautiful. The gas tankless hot water heater ensures you'll never run out of hot water.
Time on Site
1 year ago
Property Type
Residential
Year Built
2024
Lot Size
6,098 SqFt
Price/Sq.Ft.
N/A
HOA Fees
Request Info from Buyer's Agent