Sold on 12/3/2024 for $245,000



30 Fernhill Lane, Fountain Inn, SC 29644
$249,999
$249,999
Sale Summary
Sold below asking price • Sold quickly
Bedrooms
3
Bathrooms
2
Living Area
1,983 SqFt
This property sold 1 year ago and is no longer available for purchase.
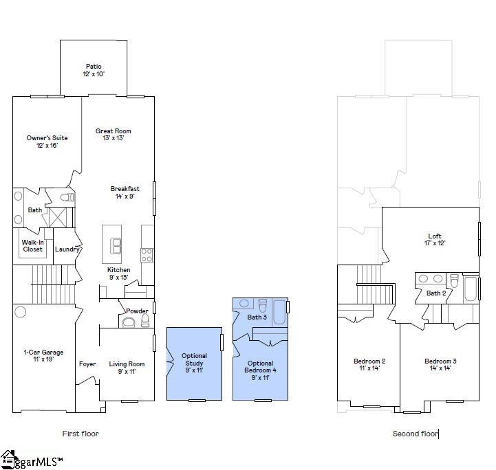
View active listings in Stoneledge Cottages →Welcome home to the beautiful Berkley floorplan. This home is expected to be complete in October. The home is an open concept floor plan with the Primary bedroom on the main level and 2 additional bedrooms upstairs along with a loft upstairs.
Time on Site
1 year ago
Property Type
Residential
Year Built
2024
Lot Size
2,178 SqFt
Price/Sq.Ft.
$126
HOA Fees
Request Info from Buyer's AgentLoading map...
The information is being provided by Greater Greenville MLS. Information deemed reliable but not guaranteed. Information is provided for consumers' personal, non-commercial use, and may not be used for any purpose other than the identification of potential properties for purchase. Copyright 2025 Greater Greenville MLS. All Rights Reserved.