Sold on 8/30/2025 for $285,000




291 Pretoria Street, Woodruff, SC 29388
$288,990
$288,990
Sale Summary
Sold below asking price • Extended time on market
Bedrooms
4
Bathrooms
2
Living Area
2,050 SqFt
This property sold 3 months ago and is no longer available for purchase.
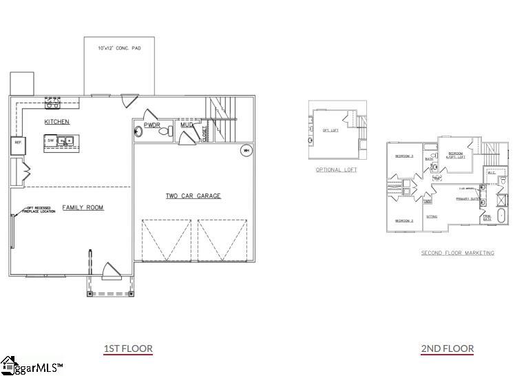
View active listings in Rutledge Estates →Whether you are hosting family game night or whipping up a quick meal, the Russell plan provides you with the space you need. The kitchen is complete with an ample cabinet and countertop space, plus an island. Upstairs you'll find three bedrooms and a spacious primary suite with a sitting area.
Time on Site
8 months ago
Property Type
Residential
Year Built
2025
Lot Size
N/A
Price/Sq.Ft.
$141
HOA Fees
Request Info from Buyer's AgentLoading map...
The information is being provided by Greater Greenville MLS. Information deemed reliable but not guaranteed. Information is provided for consumers' personal, non-commercial use, and may not be used for any purpose other than the identification of potential properties for purchase. Copyright 2025 Greater Greenville MLS. All Rights Reserved.