Sold on 2/12/2020 for $519,710


26 TRAILS EDGE Court, Greenville, SC 29617
$519,710
$519,710
Sale Summary
Sold at asking price • Extended time on market
Bedrooms
3
Bathrooms
2
This property sold 5 years ago and is no longer available for purchase.
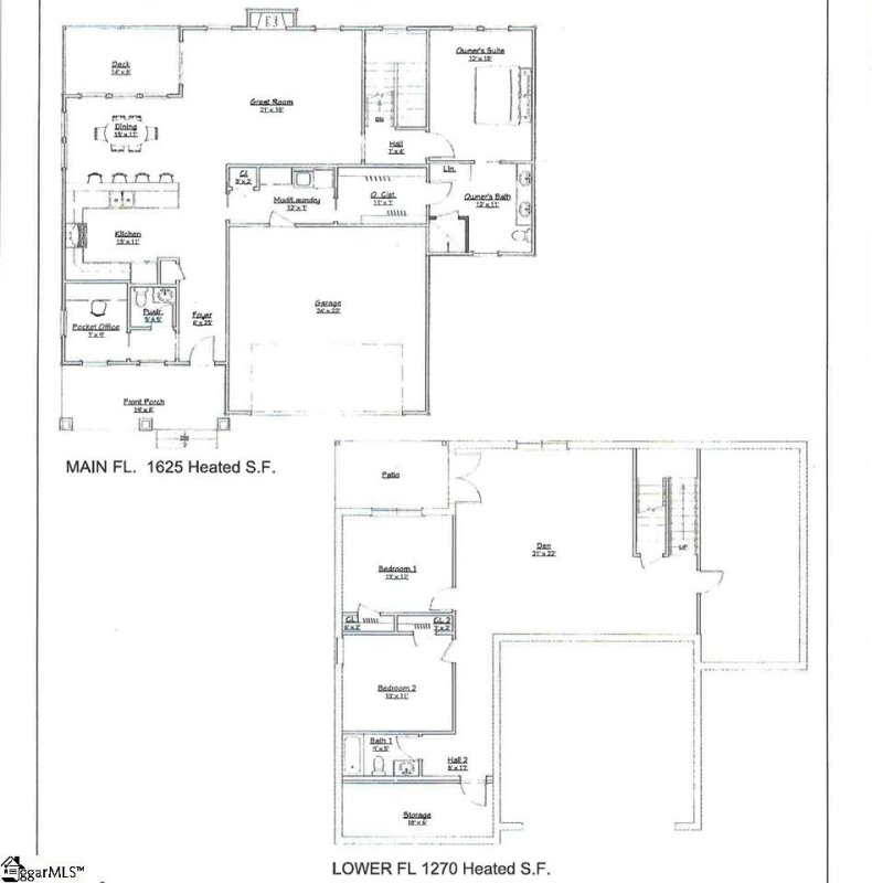
View active listings in Trailside →Innovative Zero Energy Home in Greenville’s first Dwell Well Community has been constructed with energy-efficient products and processes that include, but are not limited to: DOW Powerhouse Solar Shingle System, Velux Sun Tunnels, Velux Solar Venting Skylights, Efficient High Performance Windows, Spray Foam Attic Insulation, Insulated Exterior Structural Sheathing, Lennox XP25 Heat Pump, a Lennox PURE AIR™ Purification and Filtration System, and an Encapsulated Crawl Space that leads to ENERGY BILLS THAT APPROACH $ZERO!!! Age-in-place features include a Zero Step Shower, Space saving Pocket Doors, Zero Step Garage and more! Gorgeous finishes include dark hardwoods, designer hardware & fixtures, and today's most sought-after paint palette.
Time on Site
6 years ago
Property Type
Residential
Year Built
N/A
Lot Size
7,840 SqFt
Price/Sq.Ft.
N/A
HOA Fees
Request Info from Buyer's AgentThe information is being provided by Greater Greenville MLS. Information deemed reliable but not guaranteed. Information is provided for consumers' personal, non-commercial use, and may not be used for any purpose other than the identification of potential properties for purchase. Copyright 2025 Greater Greenville MLS. All Rights Reserved.