Sold on 1/18/2021 for $398,774





More Photos
241 Rocky Slope Road, Greenville, SC 29607
$386,500
$386,500
Sale Summary
Sold above asking price • Extended time on market
Bedrooms
3
Bathrooms
2
This property sold 4 years ago and is no longer available for purchase.
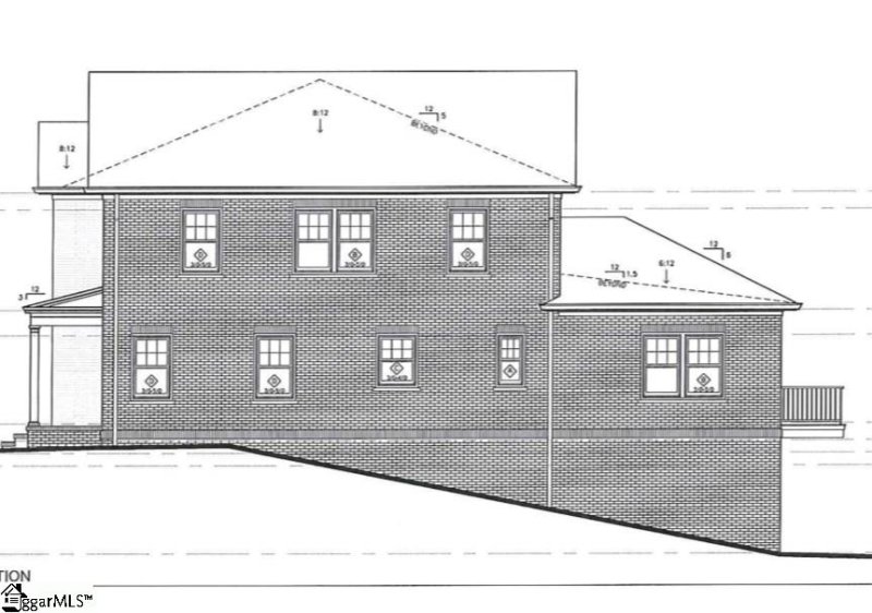
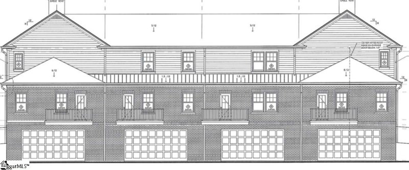
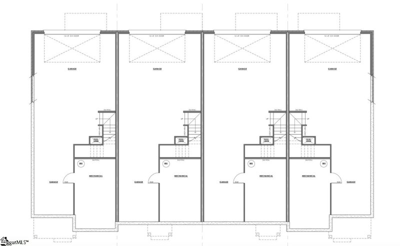
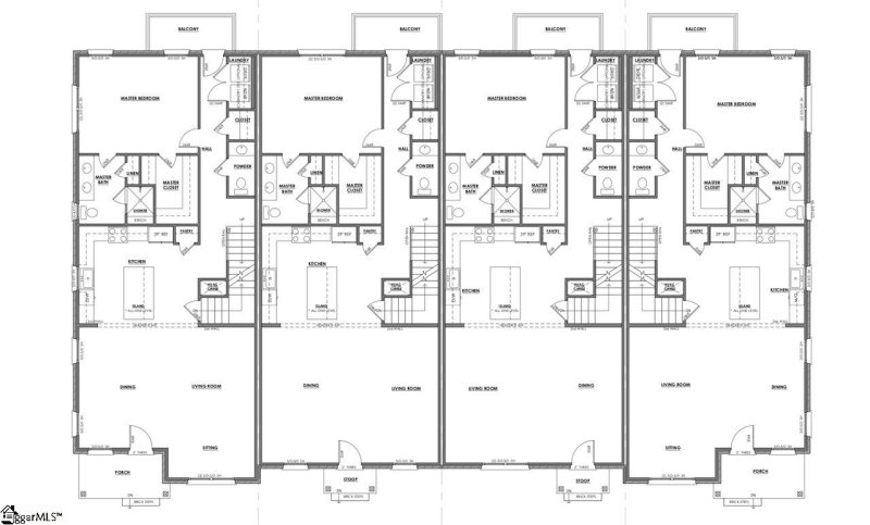
View active listings in Chelsea Townes at Hollingsworth Park →Under Construction- this is the base price of the End unit, all brick Kensington Basement Townhome at Chelsea Townes. Chelsea Townes offers maintenance free living with a highly desired attached Three Car Garage! This incredible townhome offers 2 additional bedrooms upstairs, each with walk in closets, and a loft space, which could be used as a home office, library, theatre or exercise room.
Time on Site
5 years ago
Property Type
Residential
Year Built
2020
Lot Size
3,049 SqFt
Price/Sq.Ft.
N/A
HOA Fees
Request Info from Buyer's AgentThe information is being provided by Greater Greenville MLS. Information deemed reliable but not guaranteed. Information is provided for consumers' personal, non-commercial use, and may not be used for any purpose other than the identification of potential properties for purchase. Copyright 2025 Greater Greenville MLS. All Rights Reserved.