Sold on 8/30/2023 for $310,000



211 Coral Sunset Way, Summerville, SC 29486
$312,400
$312,400
Sale Summary
Sold below asking price • Extended time on market
Bedrooms
3
Bathrooms
2
This property sold 2 years ago and is no longer available for purchase.
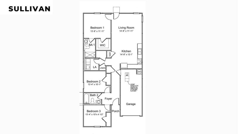
View active listings in Shell Pointe at Cobblestone Village →The Sullivan is one of our newest floorplans designed for efficient living and comfort. Past the Foyer and 2 front bedrooms, you'll enter into the living space which is open to the kitchen & dining area. The kitchen comes with stainless steal appliances including a smooth top range, microwave and dishwasher.
Time on Site
2 years ago
Property Type
Residential
Year Built
2023
Lot Size
4,791 SqFt
Price/Sq.Ft.
N/A
HOA Fees
Request Info from Buyer's Agent