Sold on 10/30/2025 for $975,000





More Photos
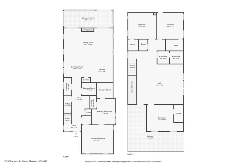
1795 Timmons Street, Mount Pleasant, SC 29466
$995,000
$995,000
Sale Summary
Sold below asking price • Sold quickly
Bedrooms
4
Bathrooms
2
Water Feature
Pond, Pond Site
This property sold 3 weeks ago and is no longer available for purchase.
View active listings in Carolina Park →Sidewalk lined streets and Lowcountry charm are what makes the community of Carolina Park feel warm and inviting. Tucked in this upscale community is a pond side home that has the primary suite conveniently located on the main level, featuring an ensuite bath with a standing soaker tub, separate shower, and a spacious closet. Upstairs, you'll find three additional bedrooms and a generous loft--an ideal retreat.The real showstopper here is the lot itself. Perched along a large pond, your evenings practically write themselves: sipping a drink on the massive screened porch, firing up the grill on the pavered patio, and still having room to run, play, or garden in the fenced backyard. Inside, the open kitchen steals the spotlight with its shaker-style cabinets, expansive island, and connection to the living areas perfect for gatherings that flow effortlessly. Luxury vinyl plank floors stretch across the downstairs, bringing durability and elegance underfoot, while a special nook under the stairs has been crafted into a quiet workspace, perfect for today's needs.
Time on Site
2 months ago
Property Type
Residential
Year Built
2022
Lot Size
6,969 SqFt
Price/Sq.Ft.
N/A
HOA Fees
Request Info from Buyer's Agent