Sold on 7/2/2025 for $680,000


15826 Hollingbourne Road, Huntersville, NC 28078
$674,900
$674,900
Sale Summary
Sold above asking price • Sold miraculously fast
Bedrooms
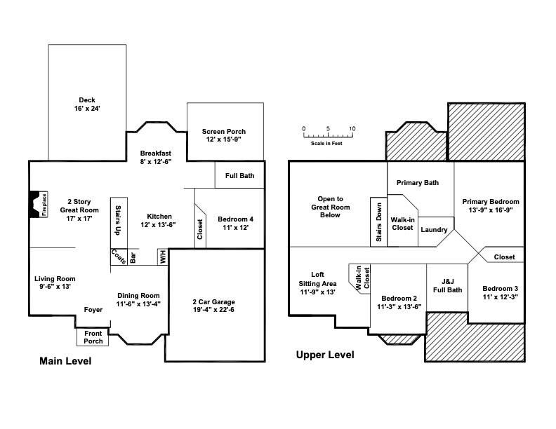
4
Bathrooms
3
Living Area
2,778 SqFt
This property sold 5 months ago and is no longer available for purchase.
View active listings in Northstone →Dreaming of living on a golf course, in a subdivision assigned to top rated schools & close to Lake Norman? Move quick & get settled before school starts! Check out this smart & versatile floor plan, which includes a bedroom & full bath on the main level!
Time on Site
6 months ago
Property Type
Residential
Year Built
1996
Lot Size
N/A
Price/Sq.Ft.
$243
HOA Fees
Request Info from Buyer's AgentLoading map...
IDX information is provided exclusively for consumers' personal, non-commercial use only; it may not be used for any purpose other than to identify prospective properties consumers may be interested in purchasing. Data is deemed reliable but is not guaranteed accurate by the MLS GRID. Use of this site may be subject to an end user license agreement. Based on information submitted to the MLS GRID as of Thu, Jul 3, 2025. All data is obtained from various sources and may not have been verified by broker or MLS GRID. Supplied Open House Information is subject to change without notice. All information should be independently reviewed and verified for accuracy. Properties may or may not be listed by the office/agent presenting the information. Some IDX listings have been excluded from this website. Any use by you of search facilities of data on the site, other than by a consumer looking to purchase real estate, is prohibited. DMCA Notice: Palmetto Park Realty respects the intellectual property rights of others. If you believe that your work has been copied in a way that constitutes copyright infringement, please provide our designated agent with written notice containing the following information: (1) identification of the copyrighted work claimed to have been infringed; (2) identification of the material that is claimed to be infringing; (3) your contact information; (4) a statement that you have a good faith belief that use of the material is not authorized; and (5) a statement that the information in the notification is accurate and you are authorized to act on behalf of the copyright owner. Please send DMCA notices to: [email protected]