Sold on 10/22/2024 for $439,000





More Photos
1535 Offshore Drive, Inman, SC 29349
$439,000
$439,000
Sale Summary
Sold at asking price • Extended time on market
Bedrooms
5
Bathrooms
4
Living Area
3,311 SqFt
This property sold 1 year ago and is no longer available for purchase.
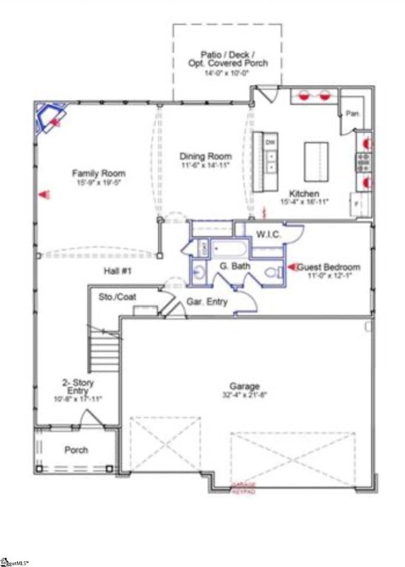
View active listings in The Cottages at Lake Emory →This Warwick is a beautiful five-bedroom, four-bathroom, three-car garage home with an open plan featuring luxury vinyl flooring on the main level living areas. As you walk into the home you will notice the large two story foyer leading to the family room and formal dining room. This space is perfect for entertaining friends and family or hosting those special holidays or get-togethers!
Time on Site
1 year ago
Property Type
Residential
Year Built
2024
Lot Size
8,276 SqFt
Price/Sq.Ft.
$133
HOA Fees
Request Info from Buyer's AgentLoading map...
The information is being provided by Greater Greenville MLS. Information deemed reliable but not guaranteed. Information is provided for consumers' personal, non-commercial use, and may not be used for any purpose other than the identification of potential properties for purchase. Copyright 2025 Greater Greenville MLS. All Rights Reserved.