Sold on 6/4/2021 for $238,400


148 Rushing Creek Lane, Piedmont, SC 29673
$242,900
$242,900
Sale Summary
Sold below asking price • Extended time on market
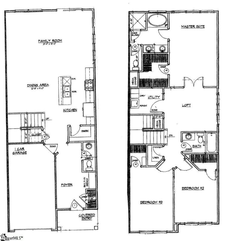
Bedrooms
3
Bathrooms
2
This property sold 4 years ago and is no longer available for purchase.
View active listings in Raven Hills →New Townhome in Powdersville - Convenient to I-85 - One car garage - private patio - This spacious end unit offers 9Ft Ceilings open living area with hardwood floors - granite counter tops in kitchen - master bath includes double sinks, garden tub, and separate shower - $5,000 incentive if using recommended lender/closing attorney - 1-2-10 Year Quality Builder Warranty
Time on Site
4 years ago
Property Type
Residential
Year Built
2021
Lot Size
1,742 SqFt
Price/Sq.Ft.
N/A
HOA Fees
Request Info from Buyer's AgentThe information is being provided by Greater Greenville MLS. Information deemed reliable but not guaranteed. Information is provided for consumers' personal, non-commercial use, and may not be used for any purpose other than the identification of potential properties for purchase. Copyright 2025 Greater Greenville MLS. All Rights Reserved.