Sold on 6/7/2024 for $463,500





More Photos
1344 Wellton Place, Campobello, SC 29322
$463,500
$463,500
Sale Summary
Sold at asking price • Extended time on market
Bedrooms
4
Bathrooms
3
This property sold 1 year ago and is no longer available for purchase.
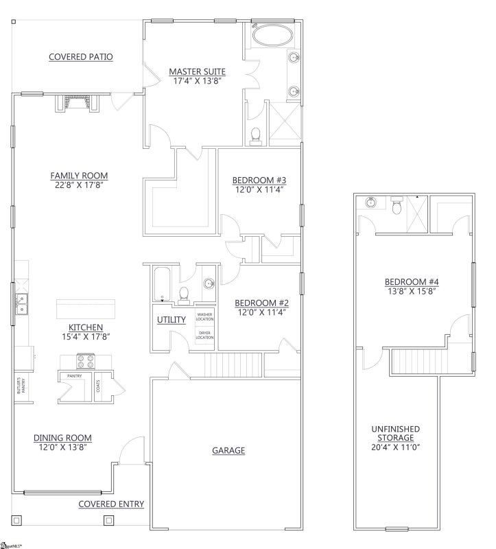
View active listings in Alder Pond →New 4 BR/3 BA home on .80 acre lot with Community Pond and Mountain Views in Alder Pond! This Vail floorplan features a Crawl Space foundation with a Covered Back Porch - Finished Upstairs Storage Room - Smart Home Manager Package - 9' Ceilings on Main Level with 12' Ceilings in Kitchen & Family Room - Ceiling Fans in Master Bedroom and Family Room - Gas Log Fireplace with Raised Hearth and Stone to Mantel - Luxury Vinyl Plank flooring throughout Main Living Areas - Ceramic Tile Flooring in Master Bathroom and 1st Floor Hall Bath - Granite Countertops in Kitchen - Quartz Vanities in All Bathrooms - 42" Kitchen Cabinetry - Double Sinks with Garden Tub & Separate Ceramic Tile Shower with Frameless Glass Shower Door in Master Bath and Stainless Steel Appliances.
Time on Site
2 years ago
Property Type
Residential
Year Built
2024
Lot Size
34,848 SqFt
Price/Sq.Ft.
N/A
HOA Fees
Request Info from Buyer's AgentThe information is being provided by Greater Greenville MLS. Information deemed reliable but not guaranteed. Information is provided for consumers' personal, non-commercial use, and may not be used for any purpose other than the identification of potential properties for purchase. Copyright 2025 Greater Greenville MLS. All Rights Reserved.