Sold on 1/31/2025 for $227,999



1310 Carmichael Place, Piedmont, SC 29673
$227,999
$227,999
Sale Summary
Sold at asking price • Sold in typical time frame
Bedrooms
4
Bathrooms
3
Living Area
1,983 SqFt
This property sold 10 months ago and is no longer available for purchase.
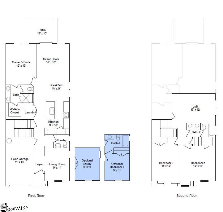
View active listings in Woodmont Springs →Welcome home to the beautiful Berkley floorplan. This home is expected to be complete by December and ready to close. The home is an open concept floor plan with the Primary bedroom on the main level along with a study with French doors and 2 additional bedrooms upstairs along with a loft area.
Time on Site
1 year ago
Property Type
Residential
Year Built
N/A
Lot Size
2,178 SqFt
Price/Sq.Ft.
$115
HOA Fees
Request Info from Buyer's AgentLoading map...
The information is being provided by Greater Greenville MLS. Information deemed reliable but not guaranteed. Information is provided for consumers' personal, non-commercial use, and may not be used for any purpose other than the identification of potential properties for purchase. Copyright 2025 Greater Greenville MLS. All Rights Reserved.