Sold on 8/26/2025 for $269,999





More Photos
13 Snowmill Road, Woodruff, SC 29388
$289,999
$289,999
Sale Summary
Sold below asking price • Sold slightly slower than average
Bedrooms
5
Bathrooms
2
Living Area
2,578 SqFt
This property sold 3 months ago and is no longer available for purchase.
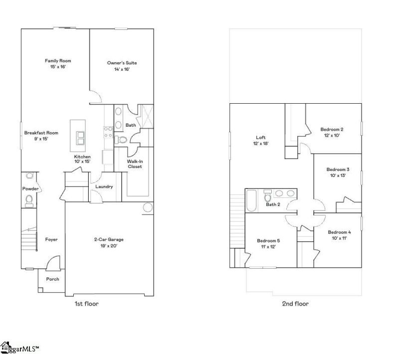
View active listings in Autumn Glen →The Frost floorplan at Lennar's Autumn Glen in Woodruff SC, is the perfect home for a growing family. With 5 bedrooms and 3 bathrooms, this spacious two-story design provides room for everyone to thrive. The first floor boasts an open layout, with the family room, kitchen, and breakfast area flowing together to create a warm, inviting space for daily living and entertaining.
Time on Site
6 months ago
Property Type
Residential
Year Built
2025
Lot Size
7,840 SqFt
Price/Sq.Ft.
$112
HOA Fees
Request Info from Buyer's AgentLoading map...
The information is being provided by Greater Greenville MLS. Information deemed reliable but not guaranteed. Information is provided for consumers' personal, non-commercial use, and may not be used for any purpose other than the identification of potential properties for purchase. Copyright 2025 Greater Greenville MLS. All Rights Reserved.