Sold on 3/25/2024 for $409,500





More Photos
119 Divot Trail, Greenwood, SC 29649
$411,500
$411,500
Sale Summary
Sold at asking price • Extended time on market
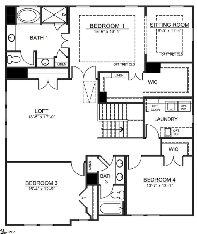
Bedrooms
4
Bathrooms
3
This property sold 1 year ago and is no longer available for purchase.
View active listings in Hunters Creek →The Hampshire is perfect if space is what you are looking for. This Beautiful 2 story, 4-bedroom, 3 bath home has over-sized rooms and lots of closet space. This open concept plan has a large Great Room with Gas Log Fireplace, a Gourmet Kitchen featuring a Large Island with Quartz Counter-tops, Tile Back-splash and Stainless-Steel appliances, including a gas range, double wall ovens, a built in Microwave and Dishwasher.
Time on Site
2 years ago
Property Type
Residential
Year Built
N/A
Lot Size
34,848 SqFt
Price/Sq.Ft.
N/A
HOA Fees
Request Info from Buyer's AgentLoading map...
The information is being provided by Greater Greenville MLS. Information deemed reliable but not guaranteed. Information is provided for consumers' personal, non-commercial use, and may not be used for any purpose other than the identification of potential properties for purchase. Copyright 2025 Greater Greenville MLS. All Rights Reserved.