Sold on 3/28/2025 for $575,000





More Photos
112 Bucklick Creek Court, Simpsonville, SC 29680
$580,931
$580,931
Sale Summary
Sold below asking price • Extended time on market
Bedrooms
5
Bathrooms
4
Living Area
3,813 SqFt
This property sold 8 months ago and is no longer available for purchase.
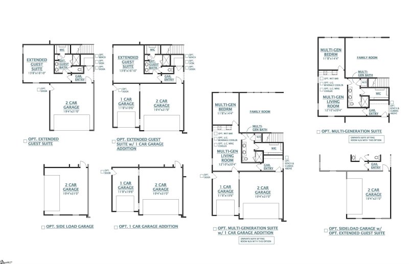
View active listings in Morning Mist →As you enter the home, you will immediately notice the wide hallways and abundant space throughout this home. This is our most popular plan - the Crestwood Model with Double Front Porches. Enjoy the breeze from the top porch while others inside enjoy the Oversized Loft upstairs.
Time on Site
1 year ago
Property Type
Residential
Year Built
2025
Lot Size
9,147 SqFt
Price/Sq.Ft.
$152
HOA Fees
Request Info from Buyer's AgentLoading map...
The information is being provided by Greater Greenville MLS. Information deemed reliable but not guaranteed. Information is provided for consumers' personal, non-commercial use, and may not be used for any purpose other than the identification of potential properties for purchase. Copyright 2025 Greater Greenville MLS. All Rights Reserved.