Sold on 4/29/2025 for $314,000





More Photos
1004 Glohaven Way, Boiling Springs, SC 29316
$314,000
$314,000
Sale Summary
Sold at asking price • Sold slightly slower than average
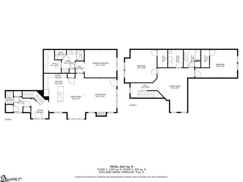
Bedrooms
3
Bathrooms
2
Living Area
2,302 SqFt
This property sold 7 months ago and is no longer available for purchase.
View active listings in Peachtree Townes →Welcome to Peachtree Townes, where charm meets modern convenience! This former model home, now available for sale, is nestled at the front entrance of an established community, in a prime location and an array of stunning upgrades. As you step inside, you're greeted by a two-story foyer that sets the tone for the elegance and comfort you'll find throughout.
Time on Site
11 months ago
Property Type
Residential
Year Built
N/A
Lot Size
4,791 SqFt
Price/Sq.Ft.
$136
HOA Fees
Request Info from Buyer's AgentLoading map...
The information is being provided by Greater Greenville MLS. Information deemed reliable but not guaranteed. Information is provided for consumers' personal, non-commercial use, and may not be used for any purpose other than the identification of potential properties for purchase. Copyright 2025 Greater Greenville MLS. All Rights Reserved.