Sold on 12/1/2021 for $350,000





More Photos
10 Rose Street, Asheville, NC 28803
$395,000
$395,000
Sale Summary
Sold below asking price • Extended time on market
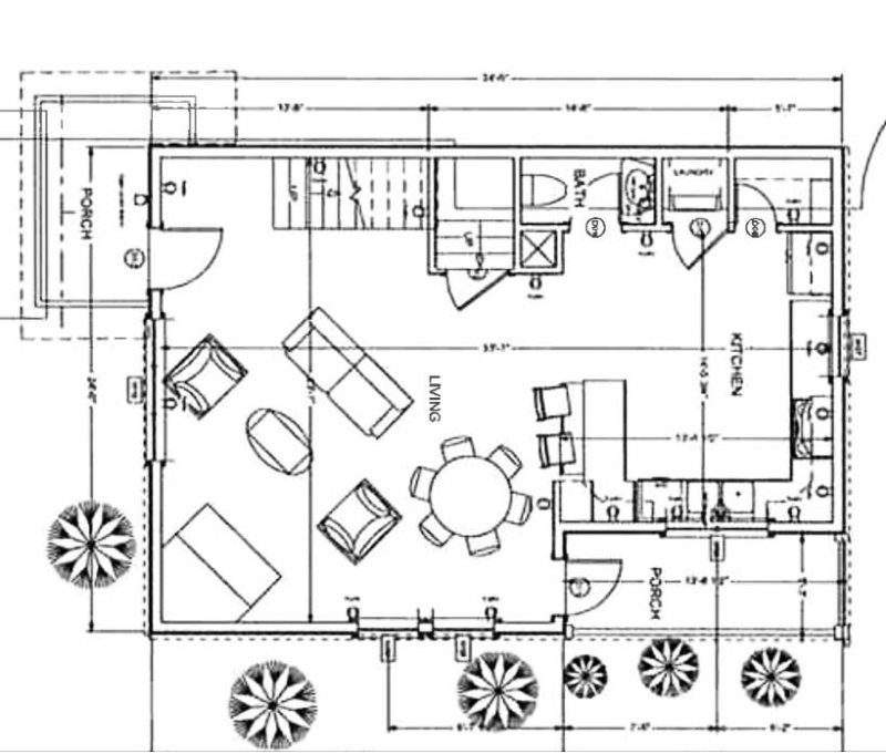
Bedrooms
3
Bathrooms
2
Living Area
1,578 SqFt
This property sold 4 years ago and is no longer available for purchase.
View active listings in shiloh →Welcome to this centrally located new under construction home, just minutes from downtown on a corner lot! The open concept kitchen, dining and living area, with windows offering lots of natural light, granite in kitchens and bath, hardwood and ceramic tile floors, and a large covered front porch and smaller covered back deck. Under construction.
Time on Site
4 years ago
Property Type
Residential
Year Built
2021
Lot Size
6,969 SqFt
Price/Sq.Ft.
$250
HOA Fees
Request Info from Buyer's AgentLoading map...
IDX information is provided exclusively for consumers' personal, non-commercial use only; it may not be used for any purpose other than to identify prospective properties consumers may be interested in purchasing. Data is deemed reliable but is not guaranteed accurate by the MLS GRID. Use of this site may be subject to an end user license agreement. Based on information submitted to the MLS GRID as of Fri, Dec 3, 2021. All data is obtained from various sources and may not have been verified by broker or MLS GRID. Supplied Open House Information is subject to change without notice. All information should be independently reviewed and verified for accuracy. Properties may or may not be listed by the office/agent presenting the information. Some IDX listings have been excluded from this website. Any use by you of search facilities of data on the site, other than by a consumer looking to purchase real estate, is prohibited. DMCA Notice: Palmetto Park Realty respects the intellectual property rights of others. If you believe that your work has been copied in a way that constitutes copyright infringement, please provide our designated agent with written notice containing the following information: (1) identification of the copyrighted work claimed to have been infringed; (2) identification of the material that is claimed to be infringing; (3) your contact information; (4) a statement that you have a good faith belief that use of the material is not authorized; and (5) a statement that the information in the notification is accurate and you are authorized to act on behalf of the copyright owner. Please send DMCA notices to: [email protected]