




Modern Simpsonville Home with Covered Porch, Trail Access, & Top Schools
301 Moorish Circle, Simpsonville, SC 29681
$379,990
$379,990
Does this home feel like a match?
Let us know — it helps us curate better suggestions for you.
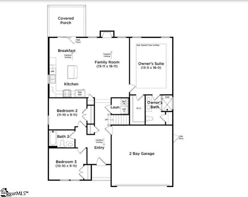
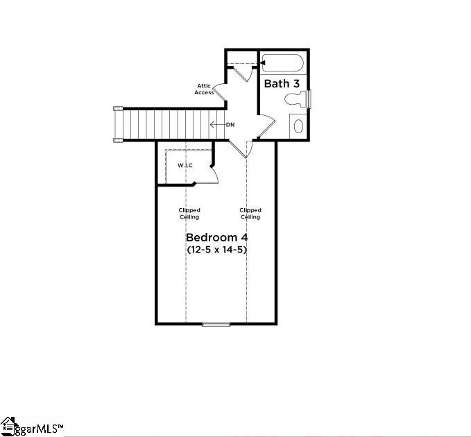
Property Highlights
Bedrooms
4
Bathrooms
3
Living Area
1,890 SqFt
Property Details
Welcome to Mulberry Estates. The only single family community in Simpsonville with future Swamp Rabbit Trail access. The Parker offers comfortable main-floor living with an open-concept design.
Time on Site
2 months ago
Property Type
Residential
Year Built
N/A
Lot Size
6,534 SqFt
Price/Sq.Ft.
$201
HOA Fees
Request Info from Buyer's AgentProperty Details
School Information
Loading map...
Additional Information
Agent Contacts
- Greenville: (864) 757-4000
- Simpsonville: (864) 881-2800
Community & H O A
Room Dimensions
Property Details
Exterior Features
- Porch-Front
- Tilt Out Windows
- Porch-Covered Back
Interior Features
- 1st Floor
- Dryer – Electric Hookup
- Carpet
- Luxury Vinyl Tile/Plank
- Dishwasher
- Disposal
- Stand Alone Range-Gas
- Oven-Self Cleaning
- Oven-Gas
- Microwave-Built In
- Attic Stairs Disappearing
- Cable Available
- Ceiling 9ft+
- Ceiling Fan
- Ceiling Smooth
- Open Floor Plan
- Smoke Detector
- Walk In Closet
- Split Floor Plan
- Countertops – Quartz
- Pantry – Closet
- Smart Systems Pre-Wiring
Systems & Utilities
Showing & Documentation
- Pre-approve/Proof of Fund
- Specified Sales Contract
The information is being provided by Greater Greenville MLS. Information deemed reliable but not guaranteed. Information is provided for consumers' personal, non-commercial use, and may not be used for any purpose other than the identification of potential properties for purchase. Copyright 2025 Greater Greenville MLS. All Rights Reserved.
