


128 Winding Stream Circle in Woodcrest Hills, Simpsonville, SC
128 Winding Stream Circle, Simpsonville, SC 29681
$558,662
$558,662
Does this home feel like a match?
Let us know — it helps us curate better suggestions for you.
Property Highlights
Bedrooms
4
Bathrooms
3
Living Area
2,615 SqFt
Property Details
Tucked within a serene setting in desirable Five Forks, Woodcrest Hills has your ideal home in an idyllic location. Here you will find a selection of beautiful new home designs which allow the opportunity to personalize at the Toll Brothers Design Studio with sophisticated fixtures and finishes. Served by desirable Greenville schools, this relaxed and refined enclave has a nestled-in-nature feel with open space at the back of the community and several options for wooded home sites.
Time on Site
4 months ago
Property Type
Residential
Year Built
N/A
Lot Size
7,840 SqFt
Price/Sq.Ft.
$214
HOA Fees
Request Info from Buyer's AgentListing Information
- LocationSimpsonville
- MLS #GVL1563832
- Stories2
- Last UpdatedJuly 19, 2025
Property Details
School Information
Loading map...
Additional Information
Agent Contacts
- Greenville: (864) 757-4000
- Simpsonville: (864) 881-2800
Community & H O A
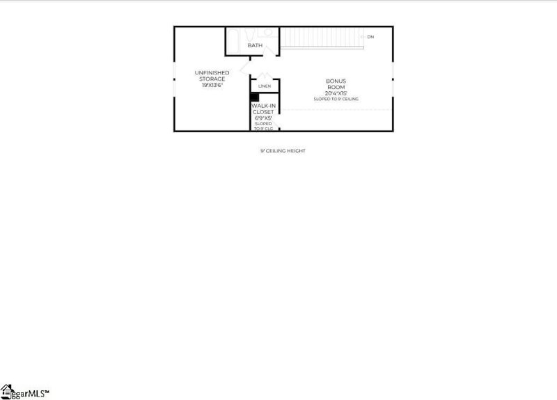
Room Dimensions
Property Details
Exterior Features
Interior Features
- 1st Floor
- Dryer – Electric Hookup
- Washer Connection
- Ceramic Tile
- Laminate Flooring
- Dishwasher
- Disposal
- Cook Top-Electric
- Oven-Electric
- Microwave-Built In
- Ceiling Smooth
- Countertops Granite
- Open Floor Plan
- Smoke Detector
- Walk In Closet
- Countertops – Quartz
- Radon System
- Smart Systems Pre-Wiring
Systems & Utilities
- Gas
- Tankless
Showing & Documentation
- Other/See Remarks
- Call Listing Office/Agent
The information is being provided by Greater Greenville MLS. Information deemed reliable but not guaranteed. Information is provided for consumers' personal, non-commercial use, and may not be used for any purpose other than the identification of potential properties for purchase. Copyright 2025 Greater Greenville MLS. All Rights Reserved.
Listing Information
- LocationSimpsonville
- MLS #GVL1563832
- Stories2
- Last UpdatedJuly 19, 2025
