





1319 Copper Leaf Drive in Stoneridge Hills, Rock Hill, SC
1319 Copper Leaf Drive, Rock Hill, SC 29732
$581,900
$581,900
Property Highlights
Bedrooms
3
Bathrooms
2
Living Area
2,552 SqFt
Property Details
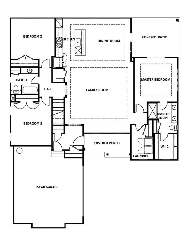
Achieve the lifestyle you have always dreamed of with the Sumter. This three-bedroom, three-bathroom home with an incredible family room, well-appointed kitchen, lots of natural light, and a luxurious master suite offers a perfect blend of comfort, functionality and style. The Sumter was designed to give you options when hosting family and friends, or simply enjoying family time at home.
Time on Site
3 months ago
Property Type
Residential
Year Built
2025
Lot Size
N/A
Price/Sq.Ft.
$228
HOA Fees
Request Info from Buyer's AgentListing Information
- LocationRock Hill
- MLS #CAR281617075
- Last UpdatedOctober 15, 2025
Property Details
School Information
Additional Information
Utilities
- Public Sewer
- Fiber Optics
- Natural Gas
- City
Lot And Land
- Cul-De-Sac
- Wooded
Agent Contacts
- Palmetto Park Realty Team Fort Mill: 803.548.6123
Interior Details
- Natural Gas
- Vinyl
- Insulated Door(s)
- Sliding Doors
- Insulated Window(s)
- Window Treatments
- Laundry Room
- Attic Walk In
- Breakfast Bar
- Kitchen Island
- Open Floorplan
- Pantry
- Split Bedroom
- Walk-In Closet(s)
- Walk-In Pantry
- Whirlpool
Exterior Features
- Architectural Shingle
- In-Ground Irrigation
- Hardboard Siding
- Stone Veneer
- Covered
- Front Porch
- Rear Porch
Parking And Garage
- Driveway
- Attached Garage
- Garage Faces Side
Financial Information
Basement And Foundation
- Slab
Zoning And Restrictions
Square Footage And Levels
- 1 Story/F.R.O.G.
Additional C A R Information

IDX information is provided exclusively for consumers' personal, non-commercial use only; it may not be used for any purpose other than to identify prospective properties consumers may be interested in purchasing. Data is deemed reliable but is not guaranteed accurate by the MLS GRID. Use of this site may be subject to an end user license agreement. Based on information submitted to the MLS GRID as of Wed, Oct 15, 2025. All data is obtained from various sources and may not have been verified by broker or MLS GRID. Supplied Open House Information is subject to change without notice. All information should be independently reviewed and verified for accuracy. Properties may or may not be listed by the office/agent presenting the information. Some IDX listings have been excluded from this website. Any use by you of search facilities of data on the site, other than by a consumer looking to purchase real estate, is prohibited. DMCA Notice: Palmetto Park Realty respects the intellectual property rights of others. If you believe that your work has been copied in a way that constitutes copyright infringement, please provide our designated agent with written notice containing the following information: (1) identification of the copyrighted work claimed to have been infringed; (2) identification of the material that is claimed to be infringing; (3) your contact information; (4) a statement that you have a good faith belief that use of the material is not authorized; and (5) a statement that the information in the notification is accurate and you are authorized to act on behalf of the copyright owner. Please send DMCA notices to: hello@palmettopark.com
Listing Information
- LocationRock Hill
- MLS #CAR281617075
- Last UpdatedOctober 15, 2025