




Brand New One-Level Home in Piedmont | USDA 100% Financing Ready
624 Silver Fir Street, Piedmont, SC 29673
$289,990
$289,990
Does this home feel like a match?
Let us know — it helps us curate better suggestions for you.
Property Highlights
Bedrooms
3
Bathrooms
2
Living Area
1,650 SqFt
Property Details
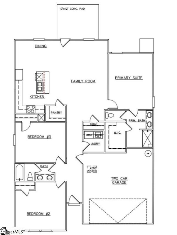
The Burton plan provides everything you need, all on one level. The flow of this home is wonderful. Two secondary bedrooms and full bath towards the front, with the master suite tucked away towards the back.
Time on Site
5 months ago
Property Type
Residential
Year Built
2024
Lot Size
6,098 SqFt
Price/Sq.Ft.
$176
HOA Fees
Request Info from Buyer's AgentProperty Details
School Information
Loading map...
Additional Information
Agent Contacts
- Greenville: (864) 757-4000
- Simpsonville: (864) 881-2800
Community & H O A
Room Dimensions
Property Details
- Ranch
- Craftsman
Exterior Features
- Brick Veneer-Partial
- Hardboard Siding
- Vinyl Siding
- Patio
- Tilt Out Windows
- Windows-Insulated
Interior Features
- 1st Floor
- Closet Style
- Walk-in
- Dryer – Electric Hookup
- Washer Connection
- Carpet
- Vinyl
- Dishwasher
- Other/See Remarks
- Cook Top-Electric
- Oven-Electric
- Microwave-Built In
- Attic
- Garage
- Laundry
- Attic
- Attic Stairs Disappearing
- Ceiling 9ft+
- Ceiling Smooth
- Countertops Granite
- Smoke Detector
- Walk In Closet
- Pantry – Walk In
- Window Trtments-AllRemain
Systems & Utilities
- Central Forced
- Electric
- Heat Pump
- Electric
- Forced Air
- Heat Pump
Showing & Documentation
- Appointment/Call Center
- Other/See Remarks
- Call Listing Office/Agent
- Under Construction
The information is being provided by Greater Greenville MLS. Information deemed reliable but not guaranteed. Information is provided for consumers' personal, non-commercial use, and may not be used for any purpose other than the identification of potential properties for purchase. Copyright 2025 Greater Greenville MLS. All Rights Reserved.
