


4 Angel Wood Drive in Pleasant Brook, Piedmont, SC
SOLD4 Angel Wood Drive, Piedmont, SC 29673
$315,900
$315,900
Sale Summary
Sold below asking price • Sold quickly
Does this home feel like a match?
Let us know — it helps us curate better suggestions for you.
Property Highlights
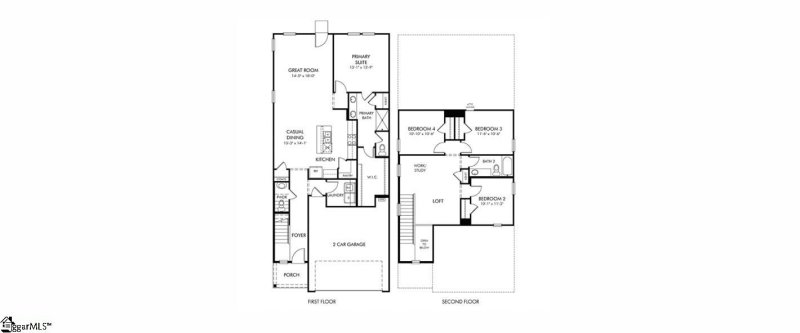
Bedrooms
4
Bathrooms
2
Living Area
2,018 SqFt
Property Details
This Property Has Been Sold
This property sold 1 week ago and is no longer available for purchase.
View active listings in Pleasant Brook →Brand new, energy-efficient home available by Oct 2025! Unwind at the end of the day in the private first-floor primary suite, complete with dual sinks and an impressive walk-in closet. Pebble cabinets with white quartz countertops, EVP flooring, and carpet in our Fresh Package.
Time on Site
2 months ago
Property Type
Residential
Year Built
2025
Lot Size
5,662 SqFt
Price/Sq.Ft.
$157
HOA Fees
Request Info from Buyer's AgentProperty Details
School Information
Loading map...
Additional Information
Agent Contacts
- Greenville: (864) 757-4000
- Simpsonville: (864) 881-2800
Community & H O A
Room Dimensions
Property Details
- Level
- Some Trees
Exterior Features
Interior Features
- Dishwasher
- Disposal
- Dryer
- Stand Alone Range-Gas
- Refrigerator
- Washer
- Microwave-Built In
- Attic Stairs Disappearing
- Ceiling 9ft+
- Ceiling Smooth
- Countertops-Solid Surface
- Walk In Closet
- Pantry – Walk In
Systems & Utilities
Showing & Documentation
- Vacant
- Other/See Remarks
- Copy Earnest Money Check
- Pre-approve/Proof of Fund
The information is being provided by Greater Greenville MLS. Information deemed reliable but not guaranteed. Information is provided for consumers' personal, non-commercial use, and may not be used for any purpose other than the identification of potential properties for purchase. Copyright 2025 Greater Greenville MLS. All Rights Reserved.
