





614 Seaborn Circle in Champions Village at Cherry Hill, Pendleton, SC
614 Seaborn Circle, Pendleton, SC 29670
$229,900
$229,900
Does this home feel like a match?
Let us know — it helps us curate better suggestions for you.
Property Highlights
Bedrooms
3
Bathrooms
2
Property Details
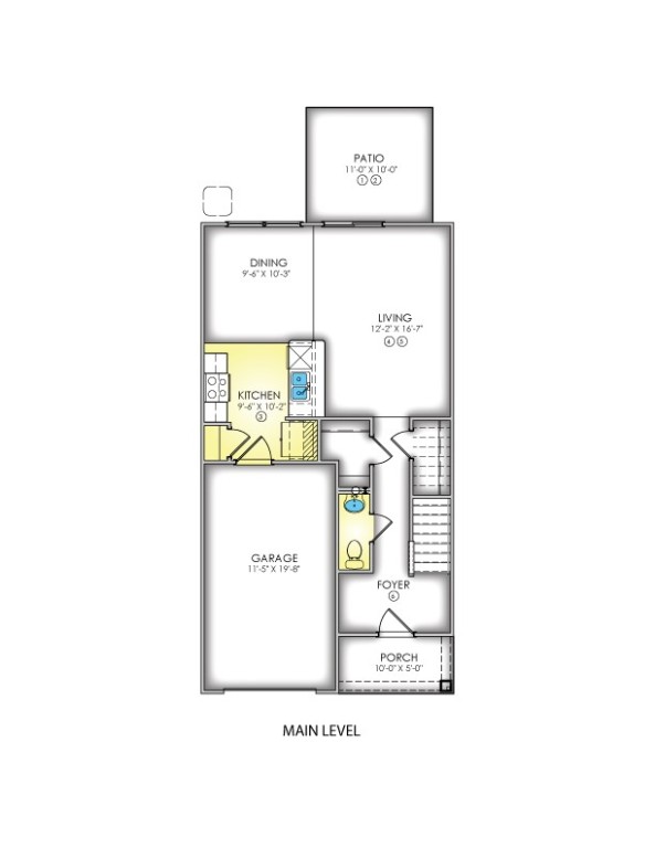
Pritchard D Plan. Discover this exquisite 3-bedroom, 2.5-bath single-family home, designed with modern convenience and elegance in mind.
Time on Site
3 months ago
Property Type
Residential
Year Built
2025
Lot Size
N/A
Price/Sq.Ft.
N/A
HOA Fees
Request Info from Buyer's AgentListing Information
- LocationPendleton
- MLS #WUM1131966544
- Stories2
- Last UpdatedOctober 31, 2025
Property Details
School Information
Additional Information
Utilities
- Cable Available
- Electricity Available
- Natural Gas Available
- Phone Available
- Sewer Available
- Water Available
- Underground Utilities
Lot And Land
- City Lot
- Level
- Subdivision
Pool And Spa
Agent Contacts
- Anderson: (864) 202-6000
- Greenville: (864) 757-4000
- Lake Keowee: (864) 886-2499
Interior Details
- Central
- Gas
- Natural Gas
- Zoned
- Carpet
- Vinyl
- Laundry
- Living Room
- Office
- Insulated Windows
- Tilt In Windows
- Vinyl
- Washer Hookup
- Electric Dryer Hookup
- Ceiling Fans
- Dual Sinks
- Granite Counters
- Bath In Primary Bedroom
- Quartz Counters
- Smooth Ceilings
- Shower Only
- Upper Level Primary
- Walk In Closets
- Walk In Shower
- Radon Mitigation System
- Smoke Detectors
Exterior Features
- Architectural
- Shingle
- Sprinkler Irrigation
- Porch
- Patio
- Front Porch
- Patio
Parking And Garage
- Attached
- Garage
- Driveway
- Garage Door Opener
Dwelling And Structure
- New Construction
- Never Occupied
Basement And Foundation
Square Footage And Levels
This information is deemed reliable, but not guaranteed. Neither, the Western Upstate Association of REALTORS®, Inc. or Western Upstate Multiple Listing Service of South Carolina Inc., nor the listing broker, nor their agents or subagents are responsible for the accuracy of the information. The buyer is responsible for verifying all information. This information is provided by the Western Upstate Association of REALTORS®, Inc. and Western Upstate Multiple Listing Service of South Carolina, Inc. for use by its members and is not intended for the use for any other purpose. Information is provided for consumers' personal, non-commercial use, and may not be used for any purpose other than the identification of potential properties for purchase. The data relating to real estate for sale on this Web site comes in part from the Broker Reciprocity Program of the Western Upstate Association of REALTORS®, Inc. and the Western Upstate Multiple Listing Service, Inc.
Listing Information
- LocationPendleton
- MLS #WUM1131966544
- Stories2
- Last UpdatedOctober 31, 2025
