




The Park at Wilkinson
1/27
$216k
The Park at Wilkinson
$216k
137 Hale Road in The Park at Wilkinson, Orangeburg, SC
137 Hale Road, Orangeburg, SC 29115
$215,500
$215,500
203 views
20 saves
Does this home feel like a match?
Let us know — it helps us curate better suggestions for you.
Property Highlights
Bedrooms
3
Bathrooms
2
Property Details
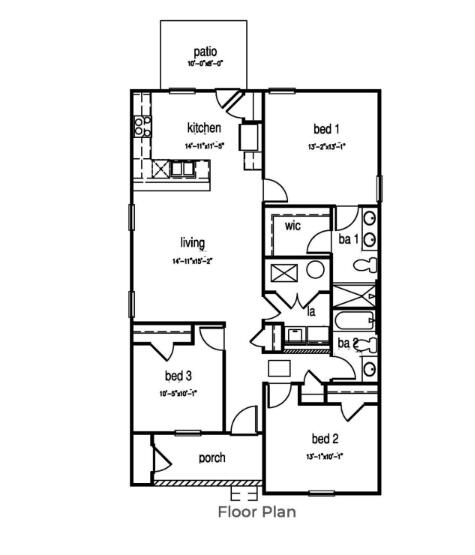
Find your new home in the Lewis at 137 Hale Road in Orangeburg, SC in The Park at Wilkinson community! The Lewis floor plan offers a thoughtfully designed home with three bedrooms and two bathrooms all on one level. As you enter the home, an open concept living, dining, and kitchen area welcomes you.
Time on Site
4 months ago
Property Type
Residential
Year Built
2025
Lot Size
8,276 SqFt
Price/Sq.Ft.
N/A
HOA Fees
Request Info from Buyer's AgentProperty Details
Bedrooms:
3
Bathrooms:
2
Total Building Area:
1,256 SqFt
Property Sub-Type:
SingleFamilyResidence
Stories:
1
School Information
Elementary:
Marshall Elementary School
Middle:
William J. Clark Middle
High:
Orangeburg-Wilkinson High School
School assignments may change. Contact the school district to confirm.
Loading map...
Additional Information
Lot And Land
Lot Size Area
0.19
Lot Size Acres
0.19
Lot Size Units
Acres
Agent Contacts
List Agent Mls Id
62392
List Office Name
D. R. HORTON, INC
List Office Mls Id
10787
List Agent Full Name
Mallory Warner
Property Details
Directions
Take Exit 145 From I-26. Follow Us-601 S Towards Orangeburg. Turn Left Onto Bruin Drive. The Park At Wilkinson Will Be On The Left. Gps: Bruin Dr, Orangeburg, Sc 29115
M L S Area Major
83 - ORG - Orangeburg County
Tax Map Number
01811300009
County Or Parish
Orangeburg
Property Sub Type
Single Family Detached
Architectural Style
Ranch
Construction Materials
Vinyl Siding
Exterior Features
Roof
Architectural
Other Structures
No
Interior Features
Cooling
Central Air
Heating
Natural Gas
Flooring
Carpet, Luxury Vinyl
Room Type
Family, Pantry
Interior Features
Ceiling - Smooth, Walk-In Closet(s), Family, Pantry
Systems & Utilities
Sewer
Public Sewer
Water Source
Public
Financial Information
Listing Terms
Cash, Conventional, FHA, State Housing Authority, USDA Loan, VA Loan
Additional Information
Stories
1
Cooling Y N
true
Feed Types
- IDX
Heating Y N
true
Listing Id
25021471
Mls Status
Active
City Region
None
Listing Key
e696eaa0bd477e836418e09427557290
Coordinates
- -80.831856
- 33.519652
Fireplace Y N
false
Home Warranty Y N
true
Standard Status
Active
Source System Key
20250805204501110628000000
Building Area Units
Square Feet
Foundation Details
- Slab
New Construction Y N
true
Property Attached Y N
false
Originating System Name
CHS Regional MLS
Special Listing Conditions
10 Yr Warranty
Showing & Documentation
Internet Address Display Y N
true
Internet Consumer Comment Y N
true
Internet Automated Valuation Display Y N
true
