





3889 Summerton Street in Carolina Park, Mount Pleasant, SC
3889 Summerton Street, Mount Pleasant, SC 29466
$1,764,000
$1,764,000
Does this home feel like a match?
Let us know — it helps us curate better suggestions for you.
Property Highlights
Bedrooms
4
Bathrooms
3
Property Details
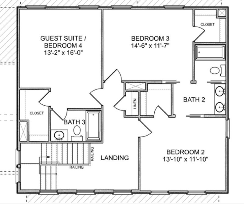
INTRODUCING THE PRESERVE - RIVERSIDE'S VERY LAST CUSTOM HOME PHASE. Be part of The Preserve story in Riverside! Over the last dozen-plus years, Riverside has shaped itself into a mature custom homes community where beauty and community come together in Mt. Pleasant, SC. The Preserve Lots are a collection of only 13 home sites. The most exclusive new construction offering to date in Riverside at Carolina Park. This custom new construction home features 2804 SF, 4 bedrooms, and 3.5 baths. This lot is in an X Flood Zone. This home plan can be modified or elevated if preferred. Pool can be added! Carriage house can be added! Structural changes/customized design options may be chosen. Finance Fees may apply.
Time on Site
8 months ago
Property Type
Residential
Year Built
2025
Lot Size
27,007 SqFt
Price/Sq.Ft.
N/A
HOA Fees
Request Info from Buyer's AgentListing Information
- LocationMount Pleasant
- MLS #CHSe7d6c5afa0a8a0edddc4f372ac61f275
- Stories2
- Last UpdatedMarch 24, 2025
Property Details
School Information
Additional Information
Region
Lot And Land
Agent Contacts
Community & H O A
Room Dimensions
Property Details
Exterior Features
Interior Features
Systems & Utilities
Financial Information
Additional Information
- IDX
- -79.746408
- 32.902776
- Crawl Space
Showing & Documentation
Listing Information
- LocationMount Pleasant
- MLS #CHSe7d6c5afa0a8a0edddc4f372ac61f275
- Stories2
- Last UpdatedMarch 24, 2025
