



Brand New 4 Bed Home | Dorman High Zone | Open Concept Design
348 Prosperity Lane, Moore, SC 29369
$274,000
$274,000
Does this home feel like a match?
Let us know — it helps us curate better suggestions for you.
Property Highlights
Bedrooms
4
Bathrooms
2
Living Area
2,140 SqFt
Property Details
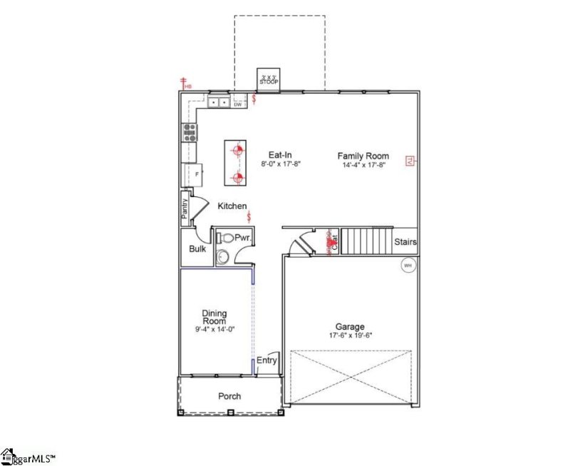
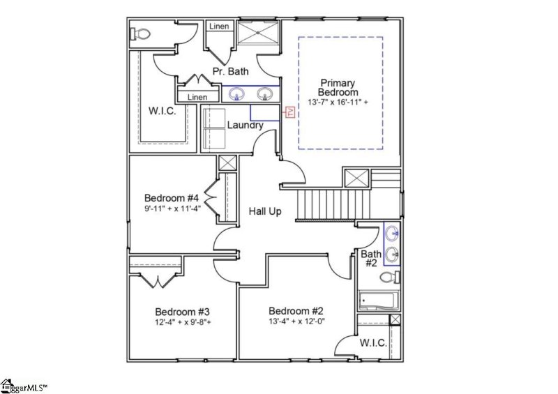
This Lancaster floorplan is a thoughtfully designed two-story home that includes 4 bedrooms and 2.5 bathrooms. Just of the entry of the home your dining room awaits and is perfect for those family meals and gatherings.
Time on Site
6 months ago
Property Type
Residential
Year Built
2025
Lot Size
4,791 SqFt
Price/Sq.Ft.
$128
HOA Fees
Request Info from Buyer's AgentProperty Details
School Information
Additional Information
Region
Agent Contacts
- Greenville: (864) 757-4000
- Simpsonville: (864) 881-2800
Community & H O A
Room Dimensions
Property Details
- Level
- Underground Utilities
Exterior Features
Interior Features
- 2nd Floor
- Dryer – Electric Hookup
- Carpet
- Vinyl
- Cook Top-Gas
- Dishwasher
- Oven-Gas
- Microwave-Built In
- Attic
- Garage
- Attic Stairs Disappearing
- Cable Available
- Ceiling Smooth
- Countertops Granite
- Open Floor Plan
- Walk In Closet
- Pantry – Closet
Systems & Utilities
- Gas
- Tankless
- Central Forced
- Electric
Showing & Documentation
- Warranty Furnished
- House Plans
- List Agent Present
- Call Listing Office/Agent
- Under Construction
- Copy Earnest Money Check
- Pre-approve/Proof of Fund
The information is being provided by Greater Greenville MLS. Information deemed reliable but not guaranteed. Information is provided for consumers' personal, non-commercial use, and may not be used for any purpose other than the identification of potential properties for purchase. Copyright 2025 Greater Greenville MLS. All Rights Reserved.