


1600 Switchback Circle in Collier Ridge, Moore, SC
1600 Switchback Circle, Moore, SC 29369
$324,900
$324,900
Does this home feel like a match?
Let us know — it helps us curate better suggestions for you.
Property Highlights
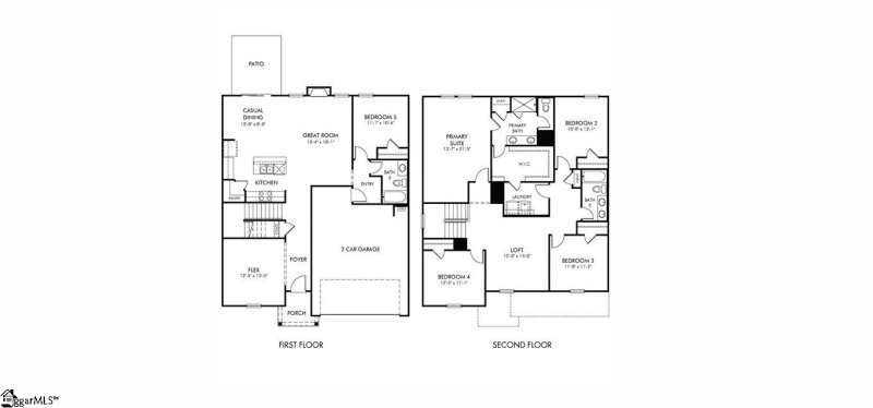
Bedrooms
5
Bathrooms
3
Living Area
2,674 SqFt
Property Details
Brand new, energy-efficient home available by Nov 2025! Sip your coffee from the Chatham’s charming back patio. The impressive primary suite boasts dual sinks and a large walk-in closet.
Time on Site
1 month ago
Property Type
Residential
Year Built
2025
Lot Size
6,534 SqFt
Price/Sq.Ft.
$122
HOA Fees
Request Info from Buyer's AgentProperty Details
School Information
Loading map...
Additional Information
Agent Contacts
- Greenville: (864) 757-4000
- Simpsonville: (864) 881-2800
Community & H O A
Room Dimensions
Property Details
- Contemporary
- Craftsman
- Level
- Some Trees
Exterior Features
- Brick Veneer-Partial
- Stone
- Vinyl Siding
- Patio
- Porch-Front
- Tilt Out Windows
Interior Features
- 2nd Floor
- Walk-in
- Dryer – Electric Hookup
- Carpet
- Ceramic Tile
- Cook Top-Gas
- Dishwasher
- Disposal
- Microwave-Built In
- Loft
- Office/Study
- Bonus Room/Rec Room
- Attic Stairs Disappearing
- Ceiling 9ft+
- Ceiling Smooth
- Countertops Granite
- Countertops-Solid Surface
- Open Floor Plan
- Countertops – Quartz
Systems & Utilities
- Central Forced
- Electric
Showing & Documentation
- Vacant
- Other/See Remarks
The information is being provided by Greater Greenville MLS. Information deemed reliable but not guaranteed. Information is provided for consumers' personal, non-commercial use, and may not be used for any purpose other than the identification of potential properties for purchase. Copyright 2025 Greater Greenville MLS. All Rights Reserved.
