



1325 Pitch Pine Place in Henson Creek Farms, Moore, SC
1325 Pitch Pine Place, Moore, SC 29369
$318,900
$318,900
Does this home feel like a match?
Let us know — it helps us curate better suggestions for you.
Property Highlights
Bedrooms
3
Bathrooms
2
Living Area
1,700 SqFt
Property Details
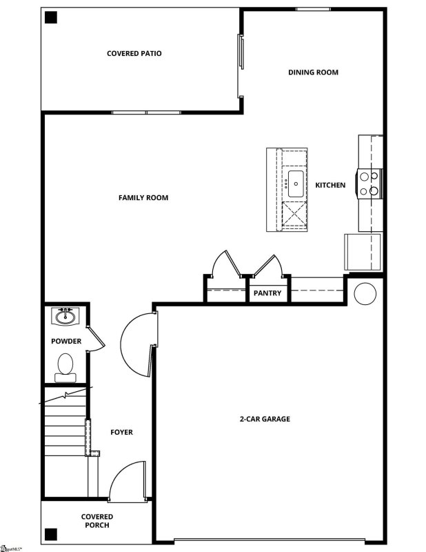
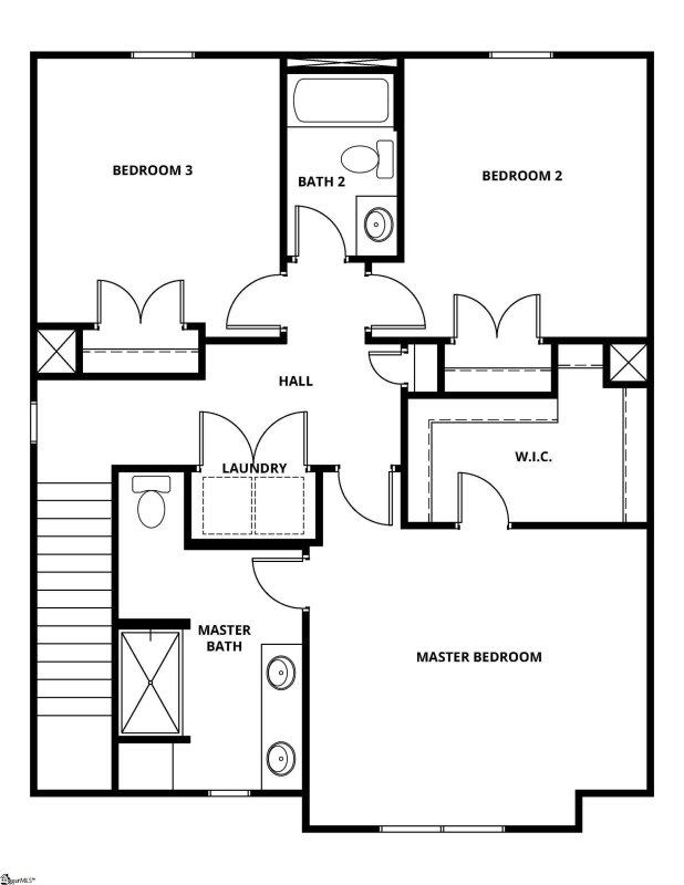
The Carolina floor plan offers a spacious and well-designed layout, perfect for families seeking comfort, practicality, and style. Featuring three generously sized bedrooms and two and a half bathrooms, it provides plenty of room for family members, a guest room, or even a home office. Whether you need additional space for a growing family or a personal hideaway, this floor plan offers the flexibility to suit your needs and lifestyle.
Time on Site
3 months ago
Property Type
Residential
Year Built
N/A
Lot Size
5,227 SqFt
Price/Sq.Ft.
$188
HOA Fees
Request Info from Buyer's AgentListing Information
- LocationMoore
 - MLS #GVL1564042
 - Stories2
 - Last UpdatedOctober 23, 2025
 
Property Details
School Information
Additional Information
Region
Agent Contacts
- Greenville: (864) 757-4000
 - Simpsonville: (864) 881-2800
 
Community & H O A
Room Dimensions
Property Details
Exterior Features
Interior Features
- Carpet
 - Luxury Vinyl Tile/Plank
 
- Dishwasher
 - Disposal
 - Refrigerator
 - Oven-Electric
 - Stand Alone Rng-Smooth Tp
 - Microwave-Built In
 
- Ceiling Fan
 - Ceiling Smooth
 - Countertops Granite
 - Open Floor Plan
 - Walk In Closet
 - Pantry – Walk In
 - Window Trtments-AllRemain
 
Systems & Utilities
Showing & Documentation
The information is being provided by Greater Greenville MLS. Information deemed reliable but not guaranteed. Information is provided for consumers' personal, non-commercial use, and may not be used for any purpose other than the identification of potential properties for purchase. Copyright 2025 Greater Greenville MLS. All Rights Reserved.
Listing Information
- LocationMoore
 - MLS #GVL1564042
 - Stories2
 - Last UpdatedOctober 23, 2025