





451 Tulip Poplar Drive in Carolina Groves, Moncks Corner, SC
451 Tulip Poplar Drive, Moncks Corner, SC 29461
$394,300
$394,300
Does this home feel like a match?
Let us know — it helps us curate better suggestions for you.
Property Highlights
Bedrooms
4
Bathrooms
2
Water Feature
Pond, Pond Site
Property Details
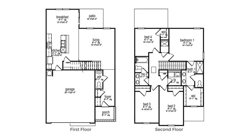
Customize YOUR homesite on this dirt lot! We are excited to offer you the opportunity to add custom options and personalize this home to fit your lifestyle. From selecting finishes and features to designing spaces that suit your needs, you can truly make this home your own before construction begins.The Edmon is a two story, 4 bedroom, 2.5 bath single-family home. This spacious new home is 1,812 square feet of easy, comfortable living. A thoughtfully laid out floorplan, beautiful design, and modern new features makes this new construction home one you won't help but love. The large eat-in kitchen will immediately capture your attention, with brand new cabinets, and stainless-steel appliances, and quartz countertops. Off the kitchen, there is a separate dining area that overlooks the patio. The kitchen also opens into a spacious living area and has a half bath just down the hall.
Time on Site
2 months ago
Property Type
Residential
Year Built
2025
Lot Size
5,662 SqFt
Price/Sq.Ft.
N/A
HOA Fees
Request Info from Buyer's AgentListing Information
- LocationMoncks Corner
- MLS #CHS041a32da2192f8234d4b6385777a9d00
- Stories2
- Last UpdatedNovember 3, 2025
Property Details
School Information
Additional Information
Region
Lot And Land
Agent Contacts
Green Features
Community & H O A
Room Dimensions
Property Details
Exterior Features
Interior Features
Systems & Utilities
Financial Information
Additional Information
- IDX
- -80.024958
- 33.158651
- Slab
- Handicapped Equipped
Showing & Documentation
Listing Information
- LocationMoncks Corner
- MLS #CHS041a32da2192f8234d4b6385777a9d00
- Stories2
- Last UpdatedNovember 3, 2025
