



Lot 44 Twinbrook Lane in Twinbrooks Resort, Maggie Valley, NC
Lot 44 Twinbrook Lane, Maggie Valley, NC 28751
$349,900
$349,900
Does this home feel like a match?
Let us know — it helps us curate better suggestions for you.
Property Highlights
Bedrooms
3
Bathrooms
2
Living Area
1,120 SqFt
Property Details
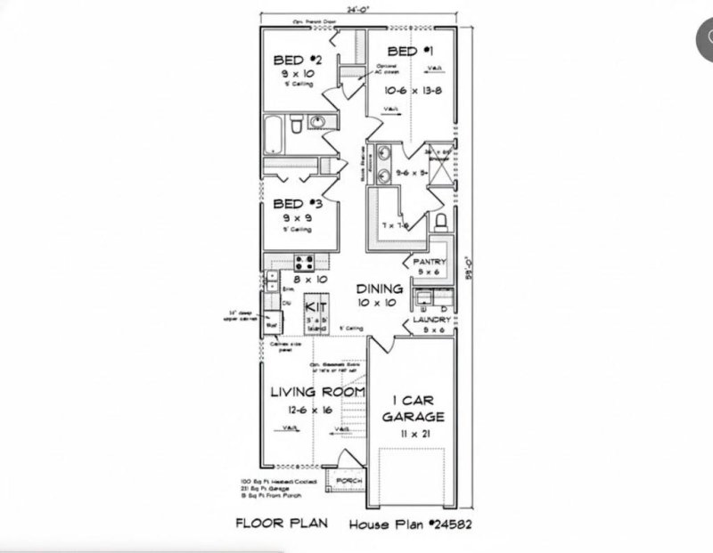
Is there a 3-bed cottage in Maggie Valley with resort amenities, a creek, and energy-efficient design? Yes—and it's a proposed 2026 build in the Twinbrook Resort subdivision. With 1,120 sq ft on one level, this 3-bed, 2-bath cottage features 9’ ceilings throughout, a granite kitchen with stainless appliances, a walk-in pantry, a breakfast nook, and LVP flooring.
Time on Site
1 week ago
Property Type
Residential
Year Built
2026
Lot Size
N/A
Price/Sq.Ft.
$312
HOA Fees
Request Info from Buyer's AgentProperty Details
School Information
Loading map...
Additional Information
Utilities
- Public Sewer
- Cable Available
- Underground Power Lines
- Underground Utilities
- Wired Internet Available
- City
Lot And Land
- Creek Front
- Creek/Stream
Agent Contacts
- Palmetto Park Realty Team Fort Mill: 803.548.6123
Interior Details
- Central
- Heat Pump
- Vinyl
- Insulated Door(s)
- Insulated Window(s)
- Laundry Room
Exterior Features
- Architectural Shingle
- Fiber Cement
- Covered
- Front Porch
Parking And Garage
- Driveway
- Attached Garage
Waterfront And View
- Winter
- Other - See Remarks
Financial Information
Dwelling And Structure
- Cottage
Basement And Foundation
- Crawl Space
Zoning And Restrictions
Square Footage And Levels
- One
Additional C A R Information
- Architectural Review
- Deed
- Short Term Rental Allowed
IDX information is provided exclusively for consumers' personal, non-commercial use only; it may not be used for any purpose other than to identify prospective properties consumers may be interested in purchasing. Data is deemed reliable but is not guaranteed accurate by the MLS GRID. Use of this site may be subject to an end user license agreement. Based on information submitted to the MLS GRID as of Mon, Dec 15, 2025. All data is obtained from various sources and may not have been verified by broker or MLS GRID. Supplied Open House Information is subject to change without notice. All information should be independently reviewed and verified for accuracy. Properties may or may not be listed by the office/agent presenting the information. Some IDX listings have been excluded from this website. Any use by you of search facilities of data on the site, other than by a consumer looking to purchase real estate, is prohibited. DMCA Notice: Palmetto Park Realty respects the intellectual property rights of others. If you believe that your work has been copied in a way that constitutes copyright infringement, please provide our designated agent with written notice containing the following information: (1) identification of the copyrighted work claimed to have been infringed; (2) identification of the material that is claimed to be infringing; (3) your contact information; (4) a statement that you have a good faith belief that use of the material is not authorized; and (5) a statement that the information in the notification is accurate and you are authorized to act on behalf of the copyright owner. Please send DMCA notices to: [email protected]