




Experience New Construction Living in Lugoff on a Large Acre Lot
152 Wild Orchard Lane, Lugoff, SC 29078
$229,999
$229,999
Does this home feel like a match?
Let us know — it helps us curate better suggestions for you.
Property Highlights
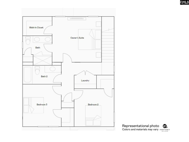
Bedrooms
3
Bathrooms
3
Living Area
1,283 SqFt
Property Details
September 2025 Move-In! Amazing NEW 3-bedroom, 2.5-bath Oakmont plan in Kershaw County, perfectly situated for easy commuting in Lugoff, SC.
Time on Site
7 months ago
Property Type
Residential
Year Built
2025
Lot Size
1.02 Acres
Price/Sq.Ft.
$179
HOA Fees
Request Info from Buyer's AgentListing Information
- LocationLugoff
- MLS #COL608180
- Last UpdatedOctober 9, 2025
Property Details
School Information
Loading map...
Additional Information
Property Details
- Dishwasher
- Disposal
- Microwave Above Stove
- Stove Exhaust Vented Exte
- Electric Water Heater
Exterior Features
- Stone
- Vinyl
- Deck
- Sprinkler
- Front Porch - Covered
Interior Features
- Electric
- Heated Space
- Utility Room
- Self Clean
- Smooth Surface
- Island
- Pantry
- Backsplash- Tiled
- Cabinets- Painted
- Recessed Lights
- Counter Tops- Quartz
- Floors- Luxury Vinyl Plank
- Smoke Detector
- Attic Pull- Down Access
- Attic Access
- Bath- Shared
- Closet- Walk In
- Closet- Private
- Floors - Carpet
- Bath- Shared
- Closet- Private
- Floors - Carpet
- Double Vanity
- Bath- Private
- Separate Shower
- Closet- Walk In
- Closet- Private
- Floors - Carpet
- Floors- Luxury Vinyl Plank
Contact Information
Systems & Utilities
- Electric
- Heat Pump 1St Lvl
- Heat Pump 2Nd Lvl
Location Information
Financial Information
- Common Area Maintenance
- Green Areas
- Cash
- Conventional
- Rural Housing Eligible
- F H A
- V A
Additional Information
- Cable T V Available
- Warranty ( New Const) Bldr
Details provided by Consolidated MLS and may not match the public record. Learn more. The information is being provided by Consolidated Multiple Listing Service, Inc. Information deemed reliable but not guaranteed. Information is provided for consumers' personal, non-commercial use, and may not be used for any purpose other than the identification of potential properties for purchase. © 2025 Consolidated Multiple Listing Service, Inc. All Rights Reserved.
Listing Information
- LocationLugoff
- MLS #COL608180
- Last UpdatedOctober 9, 2025
