




Lexington's Bluefield: New 2025 Home with Resort Amenities & Savings
3969 Golden Crane Pass, Lexington, SC 29073
$265,000
$265,000
Does this home feel like a match?
Let us know — it helps us curate better suggestions for you.
Property Highlights
Bedrooms
3
Bathrooms
3
Living Area
1,962 SqFt
Property Details
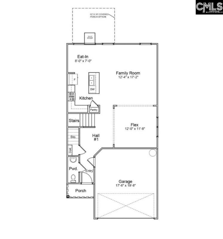
**UP TO $10K IN CLOSING COSTS WITH PARTNER LENDER AND PREFERRED ATTORNEY***Experience a luxurious lifestyle in Bluefield--the only community in Lexington with a lazy river! The Kershaw is a two-story home with three bedrooms and two-and-one-half bathrooms. A formal dining space is available just past the foyer of the home and opens up to the kitchen and great room.
Time on Site
2 months ago
Property Type
Residential
Year Built
2025
Lot Size
4,356 SqFt
Price/Sq.Ft.
$135
HOA Fees
Request Info from Buyer's AgentProperty Details
School Information
Loading map...
Additional Information
Property Details
- Dishwasher
- Disposal
- Microwave Above Stove
- Tankless H20
Exterior Features
- Stone
- Vinyl
- Sprinkler
- Front Porch - Covered
- Back Porch - Covered
Interior Features
- Eat In
- Island
- Counter Tops- Granite
- Recessed Lights
- Floors- Luxury Vinyl Plank
- Smoke Detector
- Attic Pull- Down Access
- Double Vanity
- Tub- Garden
- Separate Shower
- Ceilings- Vaulted
- Closet- Private
Contact Information
Systems & Utilities
- Central
- Split System
- Zoned
- Gas 1St Lvl
- Gas 2Nd Lvl
- Split System
- Zoned
Location Information
Financial Information
- Common Area Maintenance
- Playground
- Pool
- Street Light Maintenance
- Cash
- Conventional
- Other
- Rural Housing Eligible
- F H A
- V A
Additional Information
- Cable T V Available
- Community Pool
- Warranty ( New Const) Bldr
Details provided by Consolidated MLS and may not match the public record. Learn more. The information is being provided by Consolidated Multiple Listing Service, Inc. Information deemed reliable but not guaranteed. Information is provided for consumers' personal, non-commercial use, and may not be used for any purpose other than the identification of potential properties for purchase. © 2025 Consolidated Multiple Listing Service, Inc. All Rights Reserved.
