




3647 Stedding Place in Bluefield, Lexington, SC
3647 Stedding Place, Lexington, SC 29073
$250,000
$250,000
Does this home feel like a match?
Let us know — it helps us curate better suggestions for you.
Property Highlights
Bedrooms
3
Bathrooms
2
Living Area
1,548 SqFt
Property Details
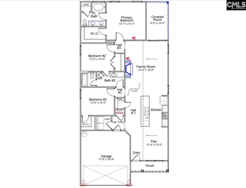
*UP TO $10K IN CLOSING COSTS WITH PARTNER LENDER AND PREFERRED ATTORNEY* Enjoy a life of luxury in Bluefield, with amazing amenities and a lazy river! This single-story Brunswick plan includes 3 an open flex space that can be used as an eat-in area or additional living space. The kitchen opens up to the great room and eat-in, and a vaulted ceiling runs throughout the home for added height and elegance.
Time on Site
3 months ago
Property Type
Residential
Year Built
2025
Lot Size
5,662 SqFt
Price/Sq.Ft.
$161
HOA Fees
Request Info from Buyer's AgentProperty Details
School Information
Loading map...
Additional Information
Property Details
- Dishwasher
- Disposal
- Microwave Above Stove
- Tankless H20
Exterior Features
- Sprinkler
- Front Porch - Covered
- Back Porch - Covered
Interior Features
- Eat In
- Island
- Recessed Lights
- Floors- Luxury Vinyl Plank
- Smoke Detector
- Attic Pull- Down Access
- Double Vanity
- Separate Shower
- Ceilings- Vaulted
- Closet- Private
Contact Information
Systems & Utilities
- Central
- Split System
- Zoned
- Gas 1St Lvl
- Gas 2Nd Lvl
- Split System
- Zoned
Location Information
Financial Information
- Common Area Maintenance
- Playground
- Pool
- Street Light Maintenance
- Cash
- Conventional
- Other
- Rural Housing Eligible
- F H A
- V A
Additional Information
- Cable T V Available
- Community Pool
- Warranty ( New Const) Bldr
Details provided by Consolidated MLS and may not match the public record. Learn more. The information is being provided by Consolidated Multiple Listing Service, Inc. Information deemed reliable but not guaranteed. Information is provided for consumers' personal, non-commercial use, and may not be used for any purpose other than the identification of potential properties for purchase. © 2025 Consolidated Multiple Listing Service, Inc. All Rights Reserved.
