





3312 Matrim Way in Bluefield, Lexington, SC
3312 Matrim Way, Lexington, SC 29073
$305,000
$305,000
Does this home feel like a match?
Let us know — it helps us curate better suggestions for you.
Property Highlights
Bedrooms
4
Bathrooms
3
Living Area
2,180 SqFt
Property Details
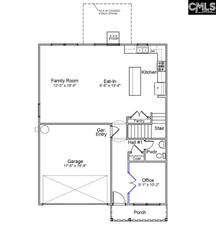
**Up to $7500 in closing costs with partner lender and attorney**Experience a luxurious lifestyle in Bluefield—the only community in Lexington with a lazy river! The Lancaster is a two-story home with four bedrooms and two and one-half bathrooms. A formal office welcomes you in just inside the front door.
Time on Site
3 months ago
Property Type
Residential
Year Built
2025
Lot Size
5,662 SqFt
Price/Sq.Ft.
$140
HOA Fees
Request Info from Buyer's AgentListing Information
- LocationLexington
- MLS #COL613539
- Last UpdatedSeptember 16, 2025
Property Details
School Information
Additional Information
Property Details
- Dishwasher
- Disposal
- Microwave Above Stove
- Tankless H20
Exterior Features
- Stone
- Vinyl
- Sprinkler
- Front Porch - Covered
- Back Porch - Covered
Interior Features
- Eat In
- Island
- Counter Tops- Granite
- Recessed Lights
- Floors- Luxury Vinyl Plank
- Smoke Detector
- Attic Pull- Down Access
- Double Vanity
- Tub- Garden
- Separate Shower
- Ceilings- Vaulted
- Closet- Private
Contact Information
Systems & Utilities
- Central
- Split System
- Zoned
- Gas 1St Lvl
- Gas 2Nd Lvl
- Split System
- Zoned
Location Information
Financial Information
- Common Area Maintenance
- Playground
- Pool
- Street Light Maintenance
- Cash
- Conventional
- Other
- Rural Housing Eligible
- F H A
- V A
Additional Information
- Cable T V Available
- Community Pool
- Warranty ( New Const) Bldr
Details provided by Consolidated MLS and may not match the public record. Learn more. The information is being provided by Consolidated Multiple Listing Service, Inc. Information deemed reliable but not guaranteed. Information is provided for consumers' personal, non-commercial use, and may not be used for any purpose other than the identification of potential properties for purchase. © 2025 Consolidated Multiple Listing Service, Inc. All Rights Reserved.
Listing Information
- LocationLexington
- MLS #COL613539
- Last UpdatedSeptember 16, 2025