





216 Socrates Street in The Village At Platt Springs, Lexington, SC
216 Socrates Street, Lexington, SC 29073
$229,999
$229,999
Does this home feel like a match?
Let us know — it helps us curate better suggestions for you.
Property Highlights
Bedrooms
3
Bathrooms
3
Living Area
1,566 SqFt
Property Details
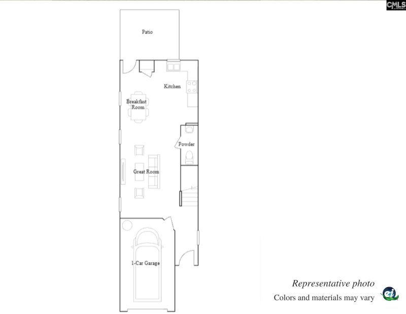
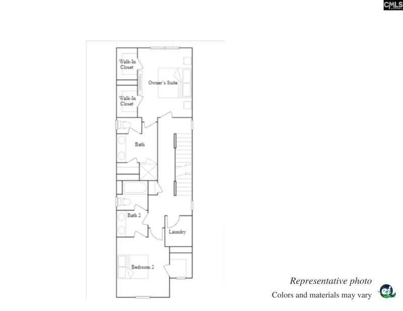
September 2025 Move-In! Welcome to the thoughtfully designed 3-bedroom, 2.5-bath Calhoun plan—a spacious three-story home located in Lexington, SC, just 30 minutes from downtown Columbia and 23 minutes from downtown Lexington.
Time on Site
3 months ago
Property Type
Residential
Year Built
2025
Lot Size
21,344 SqFt
Price/Sq.Ft.
$147
HOA Fees
Request Info from Buyer's AgentListing Information
- LocationLexington
- MLS #COL614554
- Last UpdatedAugust 18, 2025
Property Details
School Information
Additional Information
Property Details
- Dishwasher
- Disposal
- Microwave Above Stove
- Stove Exhaust Vented Exte
- Tankless H20
Exterior Features
- Brick- Partial- Abv Found
- Vinyl
- Patio
- Sprinkler
- Gutters - Full
- Front Porch - Covered
Interior Features
- Electric
- Heated Space
- Eat In
- Pantry
- Backsplash- Tiled
- Cabinets- Painted
- Recessed Lights
- Counter Tops- Quartz
- Floors- Luxury Vinyl Plank
- Garage Opener
- Smoke Detector
- Attic Pull- Down Access
- Attic Access
- Bath- Shared
- Closet- Walk In
- Tub- Shower
- Closet- Private
- Floors - Carpet
- Floors- Luxury Vinyl Plank
- Double Vanity
- Bath- Shared
- Closet- Walk In
- Tub- Shower
- Floors - Carpet
- Floors- Luxury Vinyl Plank
- Double Vanity
- Closet- His & Her
- Bath- Private
- Separate Shower
- Closet- Walk In
- Closet- Private
- Floors - Carpet
- Floors- Luxury Vinyl Plank
Contact Information
Systems & Utilities
Location Information
Financial Information
- Cash
- Conventional
- Rural Housing Eligible
- F H A
- V A
Additional Information
Details provided by Consolidated MLS and may not match the public record. Learn more. The information is being provided by Consolidated Multiple Listing Service, Inc. Information deemed reliable but not guaranteed. Information is provided for consumers' personal, non-commercial use, and may not be used for any purpose other than the identification of potential properties for purchase. © 2025 Consolidated Multiple Listing Service, Inc. All Rights Reserved.
Listing Information
- LocationLexington
- MLS #COL614554
- Last UpdatedAugust 18, 2025
