




414 Caledon Court in Indigo Grove, Johns Island, SC
414 Caledon Court, Johns Island, SC 29455
$546,490
$546,490
Does this home feel like a match?
Let us know — it helps us curate better suggestions for you.
Property Highlights
Bedrooms
4
Bathrooms
3
Property Details
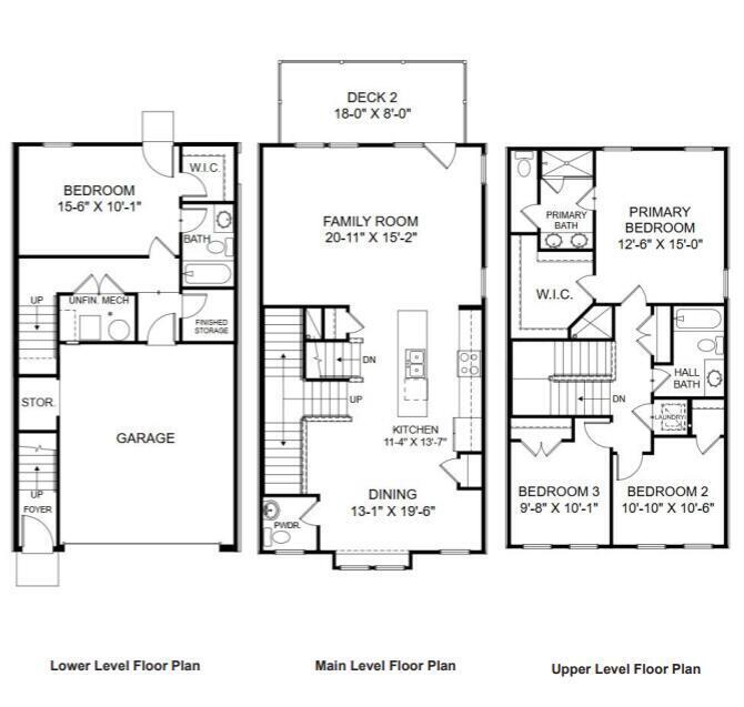
January Completion! Johns Island's most convenient location at the foot of Maybank Hwy. Bridge! Maintenance Free 3 story Townhome w/ 2 car garage on gorgeous lot backing to woods! Wide open living, a large deck off the family room and loads of upgrades included in price. Step inside to discover a lower-level bedroom suite complete with its own full bathroom, perfect for hosting guests or creating a private retreat. The main level is designed for entertaining, featuring a spacious family room, modern kitchen, and inviting dining area. Plus, the deck off the family room. for relaxing overlooking woods and scrolling! Upstairs, the primary bedroom stands out with its generous size, ensuite bathroom and LARGE walk in closet2 additional bedrooms and another well-appointed hall bathroom complete 3rd floor.
Time on Site
3 weeks ago
Property Type
Residential
Year Built
2025
Lot Size
2,178 SqFt
Price/Sq.Ft.
N/A
HOA Fees
Request Info from Buyer's AgentProperty Details
School Information
Loading map...
Additional Information
Lot And Land
Agent Contacts
Green Features
Community & H O A
Room Dimensions
Property Details
Exterior Features
Interior Features
Systems & Utilities
Financial Information
Additional Information
- IDX
- -80.032104
- 32.748145
- Raised Slab
- Slab
